Проект предоставлен партнером:
/
lh.vu/
Характеристики
-
Тип строенияЖилой дом
-
МатериалКлееный брус
-
Тип фундаментаНа винтовых сваях
-
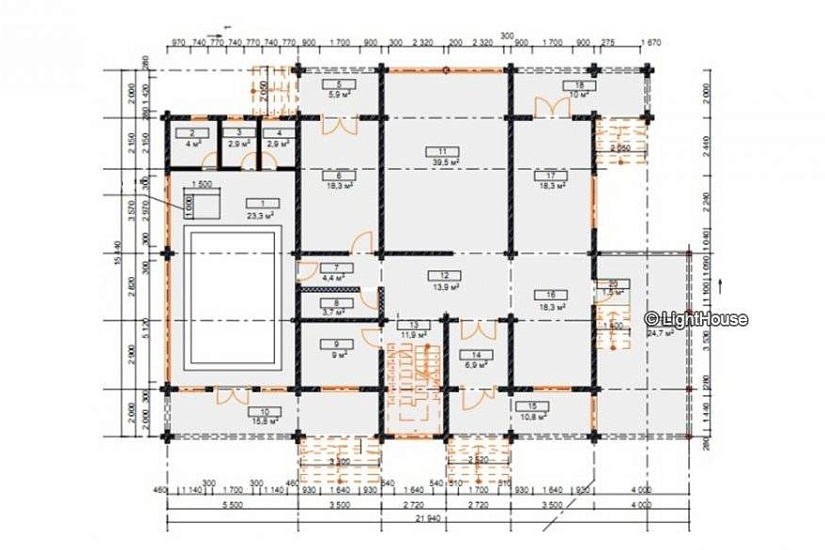
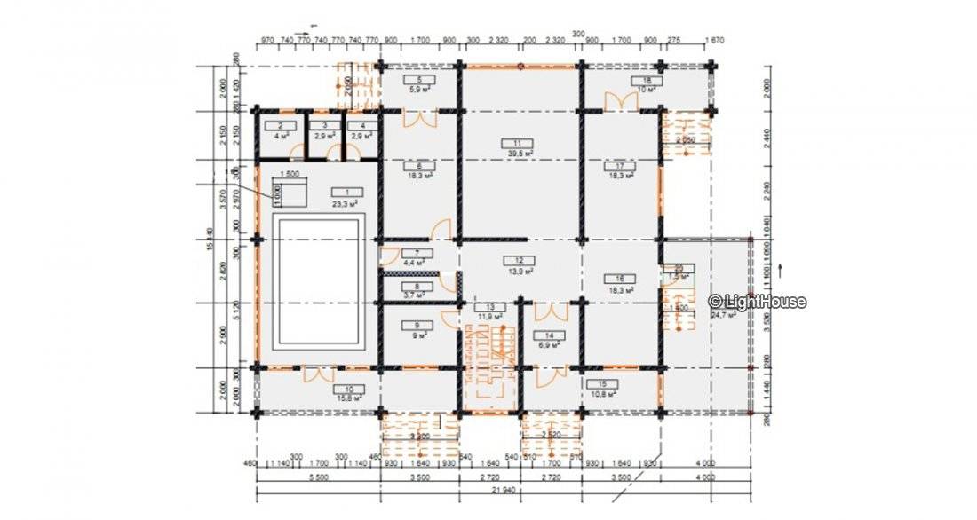
Площадь508
-
Этажность1
-
Габариты21940х15440
-
БалконДа
-
Второй светНет
-
ГаражДа
-
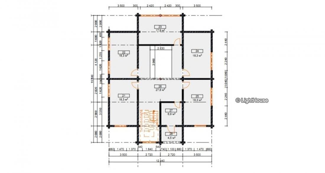
МансардаДа
-
Сауна/БассейнНет
-
ТеррасаДа
-
Цокольный этажНет









