Проект предоставлен партнером:
/
www.sks52.ru/
Характеристики
-
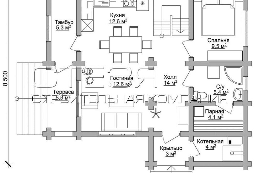
Тип строенияЖилой дом
-
МатериалОцилиндрованное бревно
-
Тип фундаментаНа винтовых сваях
-
Площадь143
-
Этажность1
-
Габариты9800*8500
-
БалконДа
-
Второй светНет
-
ГаражНет
-
МансардаДа
-
Сауна/БассейнНет
-
ТеррасаДа
-
Цокольный этажНет







