Проект предоставлен партнером:
ООО «100кубов» /
www.100kub.ru
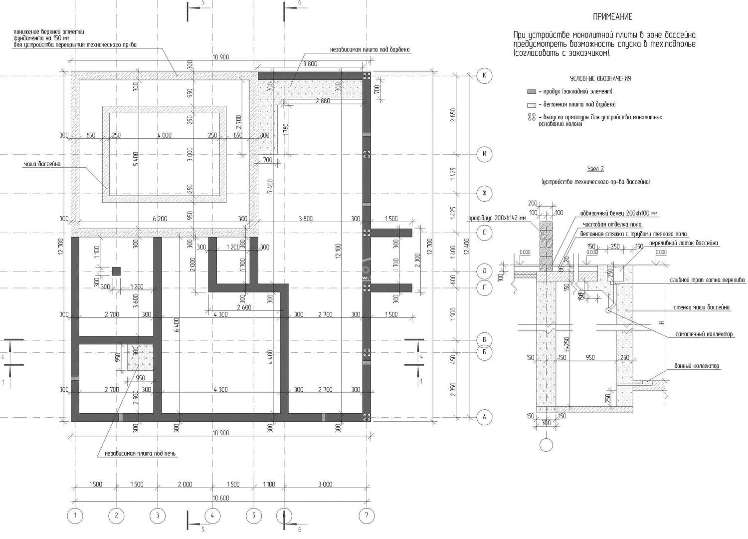
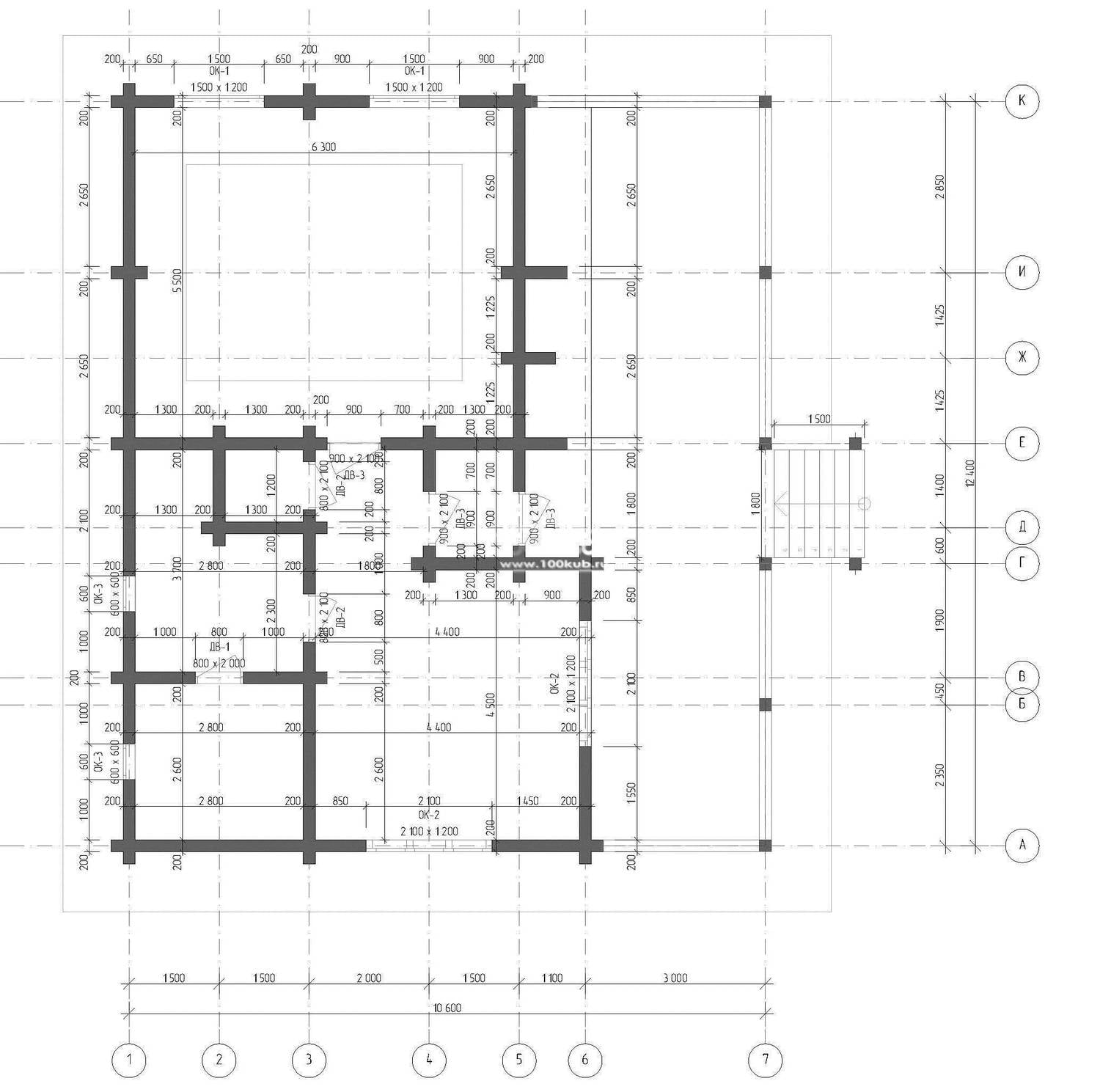
Характеристики
-
Тип строенияБаня
-
МатериалПроф. брус
-
Тип фундаментаНа винтовых сваях
-
Площадь87
-
Этажность1
-
Габариты10600*12700
-
БалконНет
-
Второй светНет
-
ГаражНет
-
МансардаДа
-
Сауна/БассейнДа
-
ТеррасаДа
-
Цокольный этажНет






