Проект предоставлен партнером:
ООО «100кубов» /
www.100kub.ru
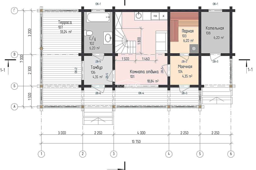
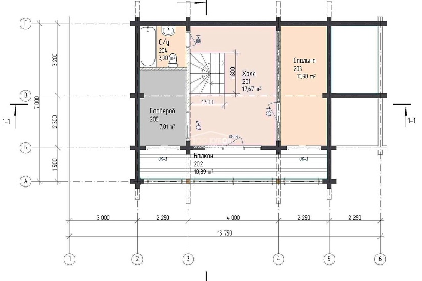
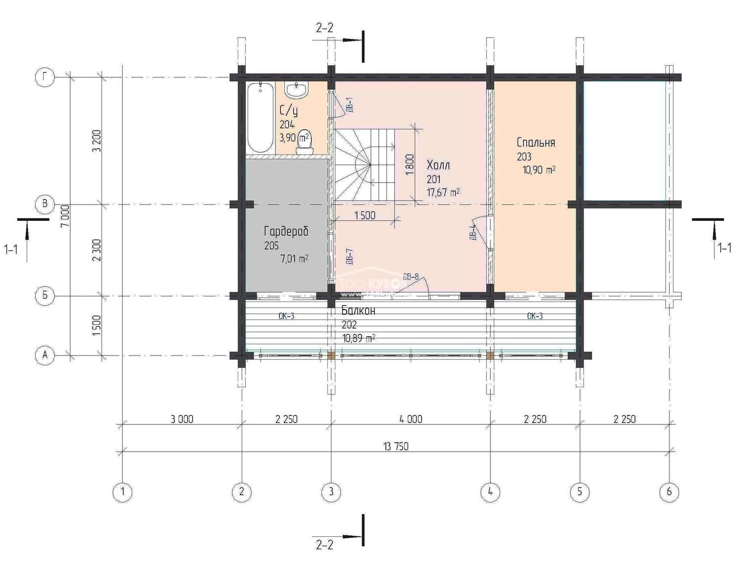
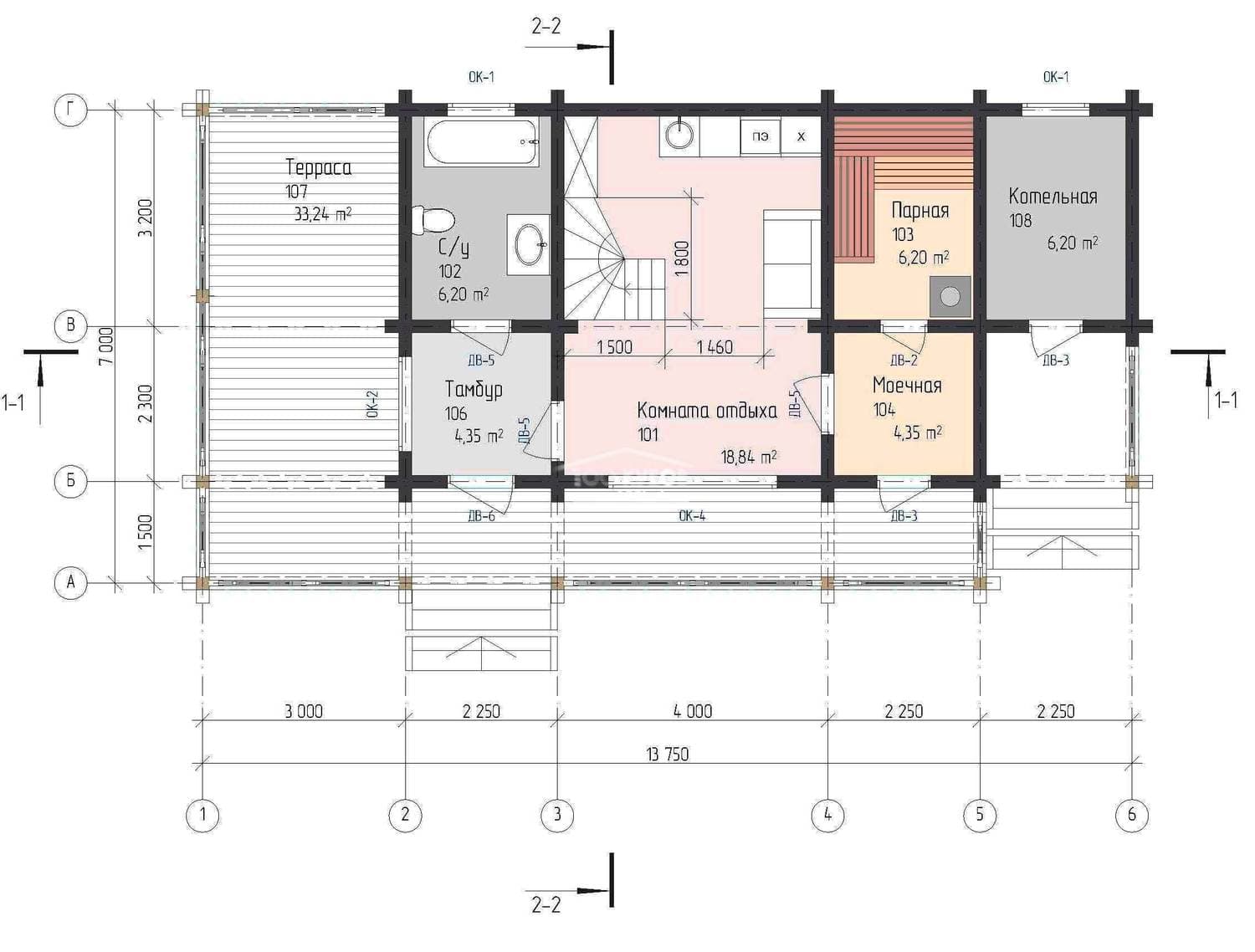
Характеристики
-
Тип строенияБаня
-
МатериалПроф. брус
-
Тип фундаментаНа винтовых сваях
-
Площадь119
-
Этажность1
-
Габариты13750*7000
-
БалконДа
-
Второй светНет
-
ГаражНет
-
МансардаДа
-
Сауна/БассейнНет
-
ТеррасаДа
-
Цокольный этажНет











