Проект предоставлен партнером:
ООО «100кубов» /
www.100kub.ru
Характеристики
-
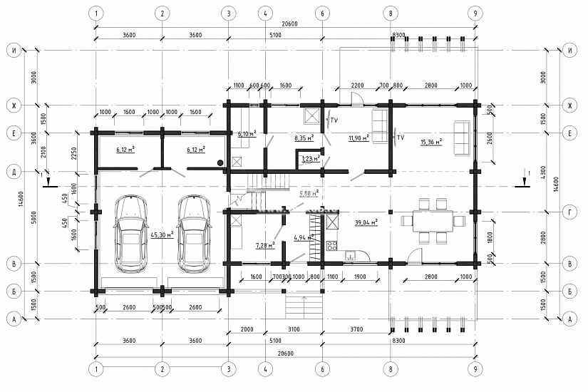
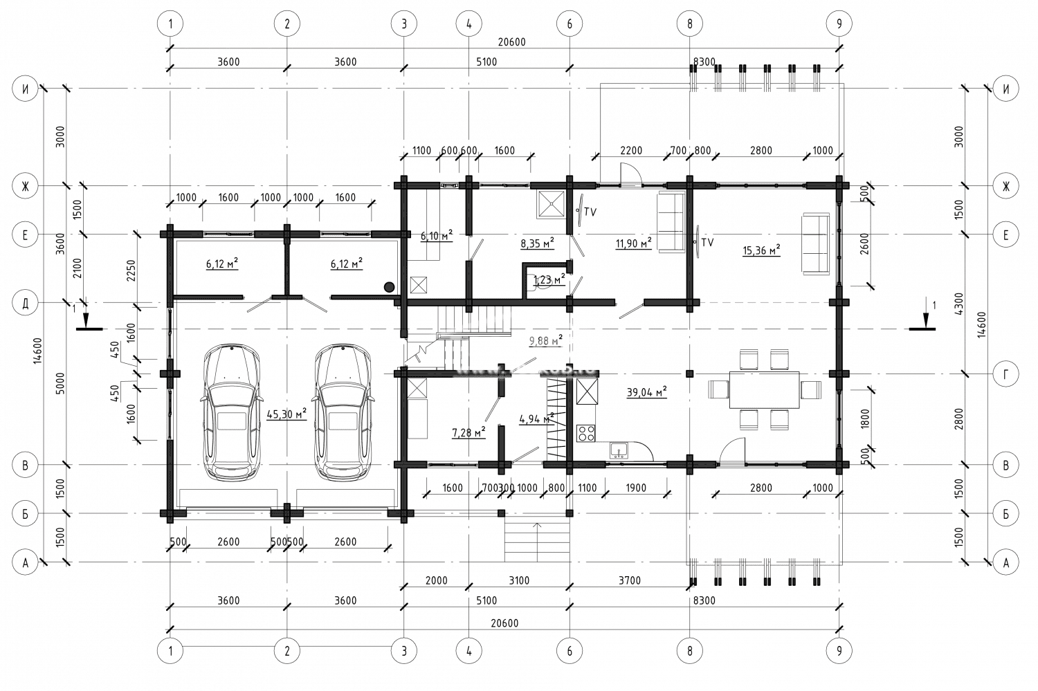
Тип строенияЖилой дом
-
МатериалПроф. брус
-
Тип фундаментаНа винтовых сваях
-
Площадь270
-
Этажность1
-
Габариты20600*14600
-
БалконНет
-
Второй светНет
-
ГаражДа
-
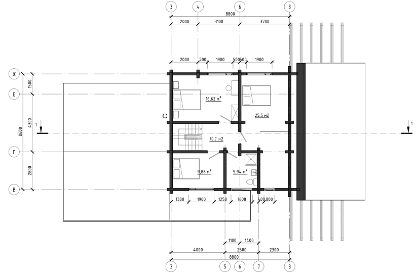
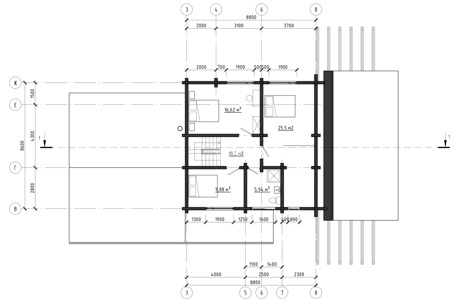
МансардаДа
-
Сауна/БассейнДа
-
ТеррасаДа
-
Цокольный этажНет











