Проект предоставлен партнером:
ООО «100кубов» /
www.100kub.ru
Характеристики
-
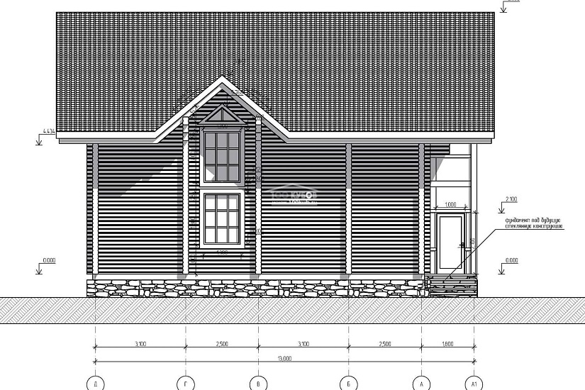
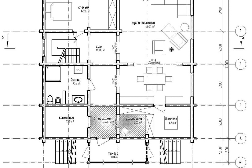
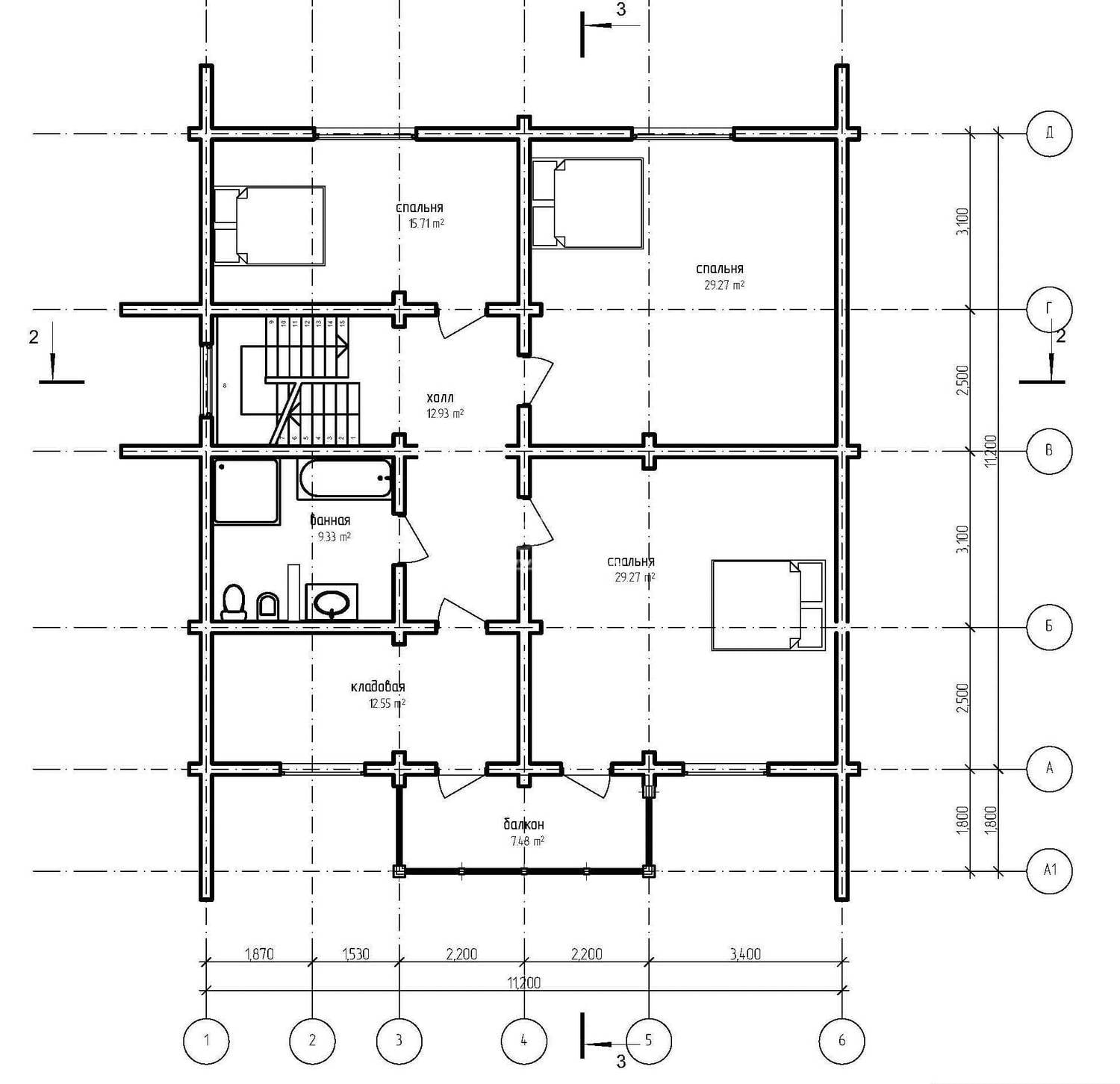
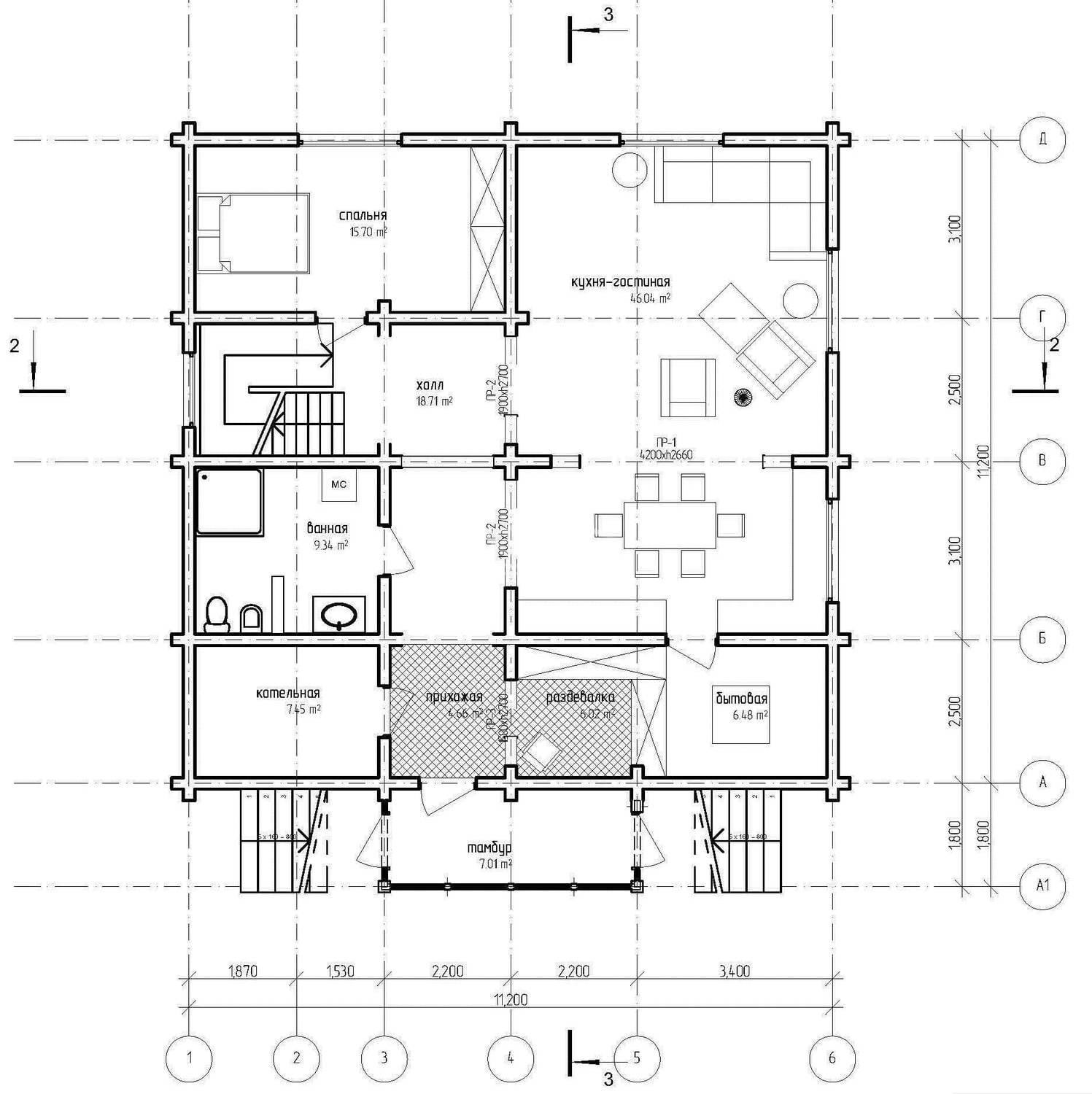
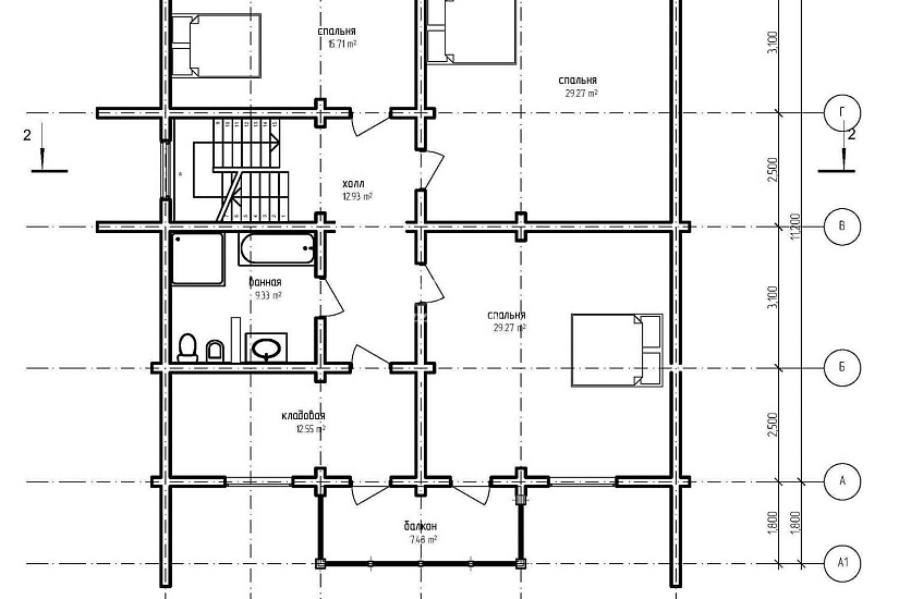
Тип строенияЖилой дом
-
МатериалПроф. брус
-
Тип фундаментаНа винтовых сваях
-
Площадь238
-
Этажность2
-
Габариты11200*11200
-
БалконДа
-
Второй светНет
-
ГаражНет
-
МансардаНет
-
Сауна/БассейнНет
-
ТеррасаНет
-
Цокольный этажНет











