Проект предоставлен партнером:
ООО «100кубов» /
www.100kub.ru
Характеристики
-
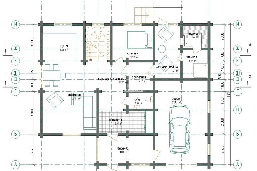
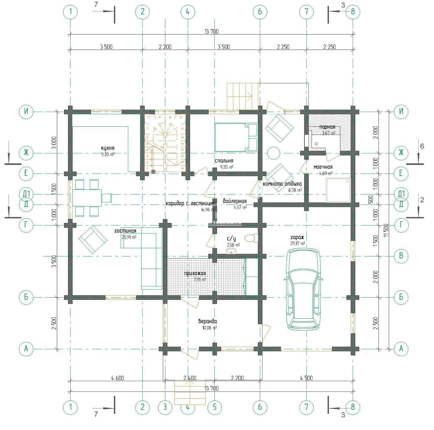
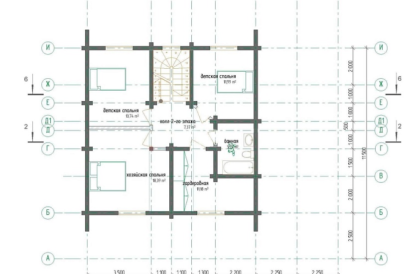
Тип строенияЖилой дом
-
МатериалПроф. брус
-
Тип фундаментаНа винтовых сваях
-
Площадь199
-
Этажность1
-
Габариты13700*11500
-
БалконНет
-
Второй светНет
-
ГаражДа
-
МансардаДа
-
Сауна/БассейнНет
-
ТеррасаНет
-
Цокольный этажНет














