Проект предоставлен партнером:
ООО «100кубов» /
www.100kub.ru
Характеристики
-
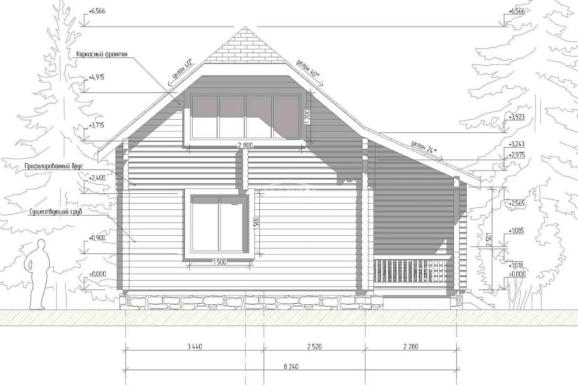
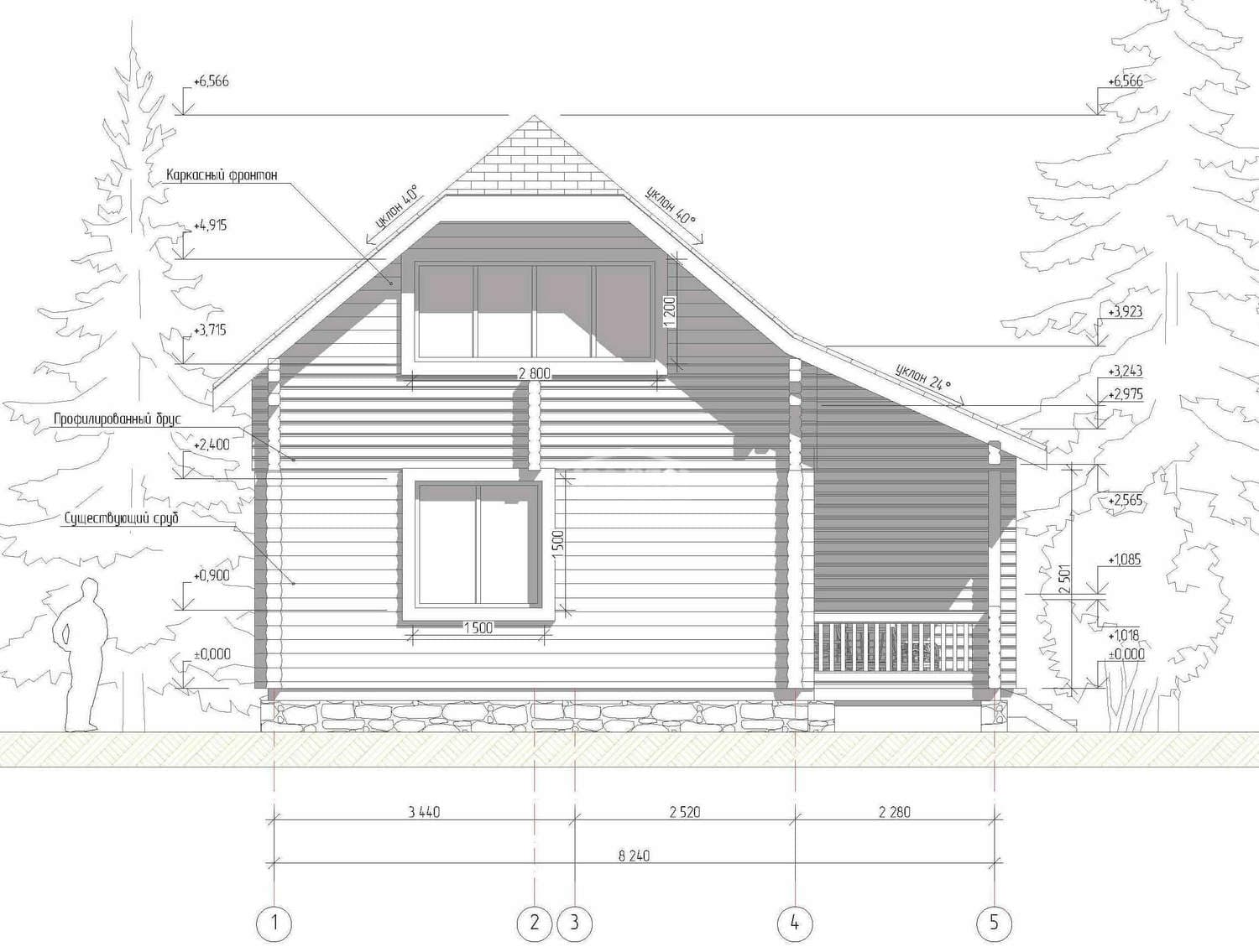
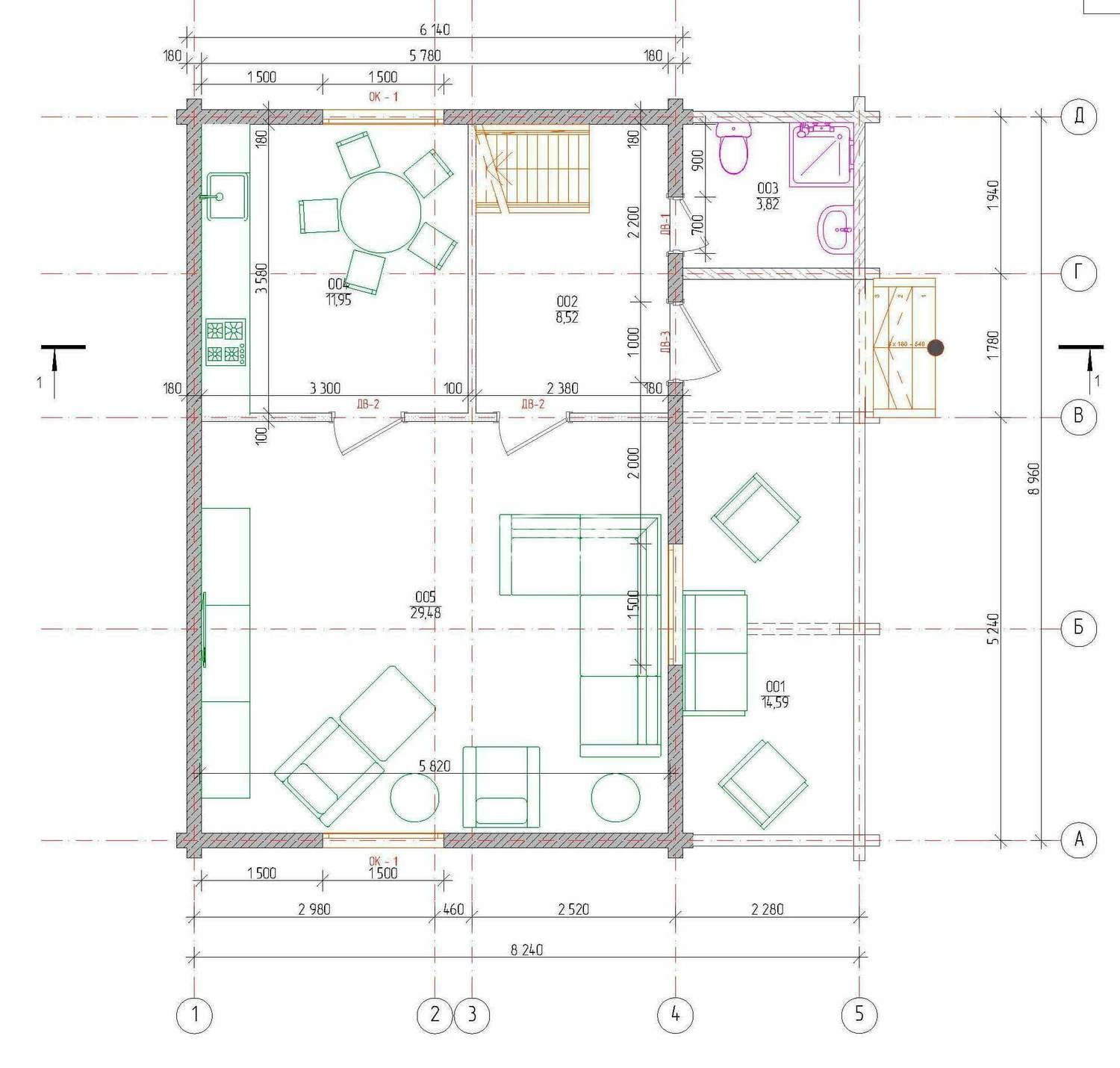
Тип строенияЖилой дом
-
МатериалПроф. брус
-
Тип фундаментаНа винтовых сваях
-
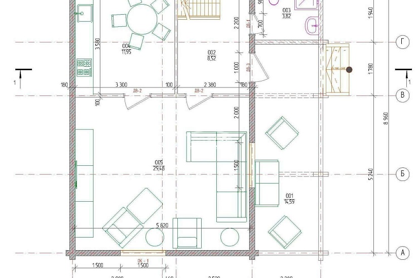
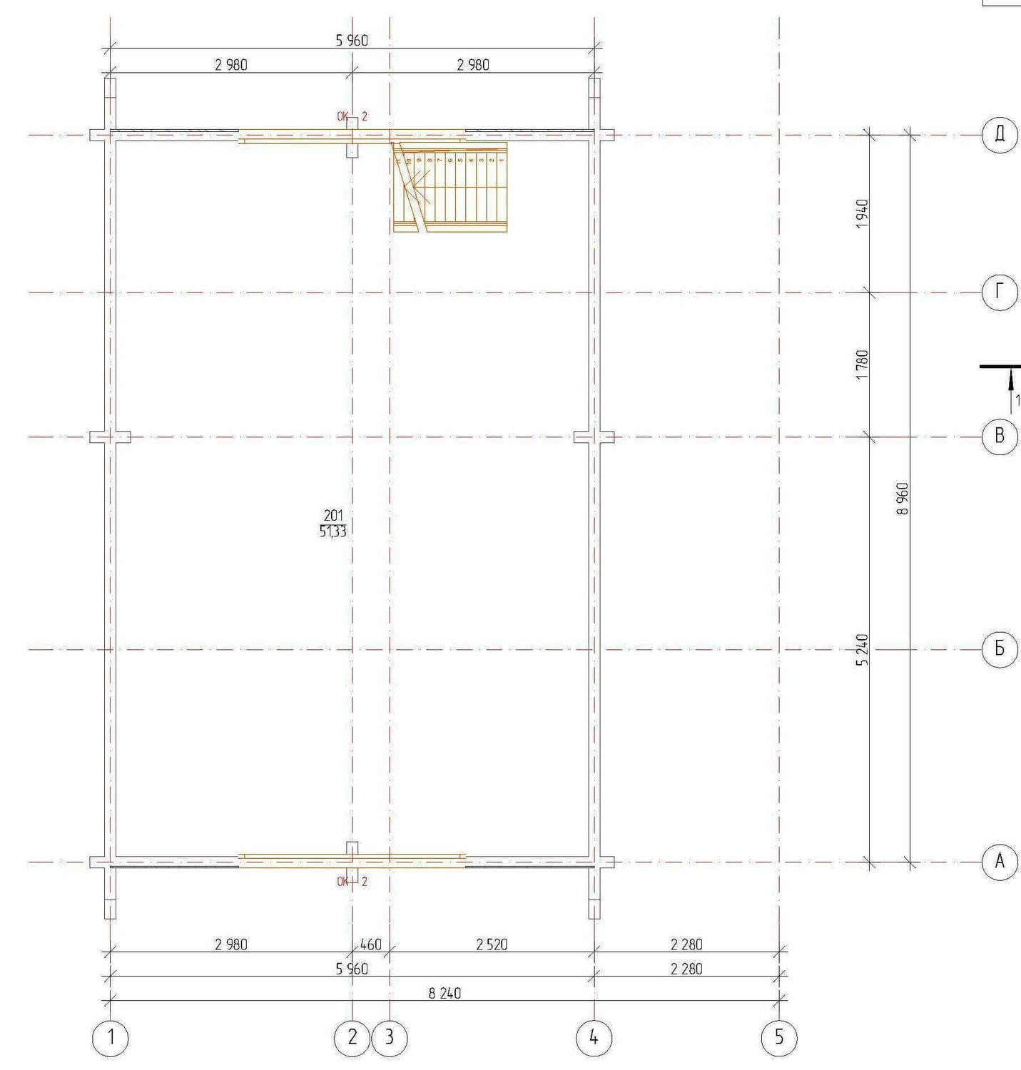
Площадь120
-
Этажность1
-
Габариты8240*8960
-
БалконНет
-
Второй светНет
-
ГаражНет
-
МансардаДа
-
Сауна/БассейнНет
-
ТеррасаНет
-
Цокольный этажНет






