Проект предоставлен партнером:
ООО «100кубов» /
www.100kub.ru
Характеристики
-
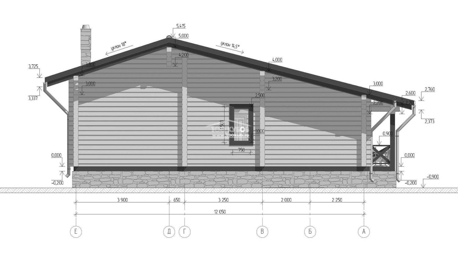
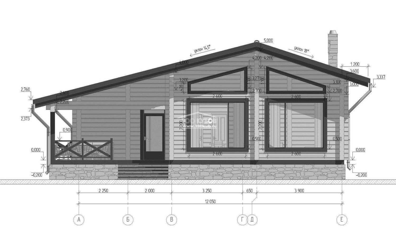
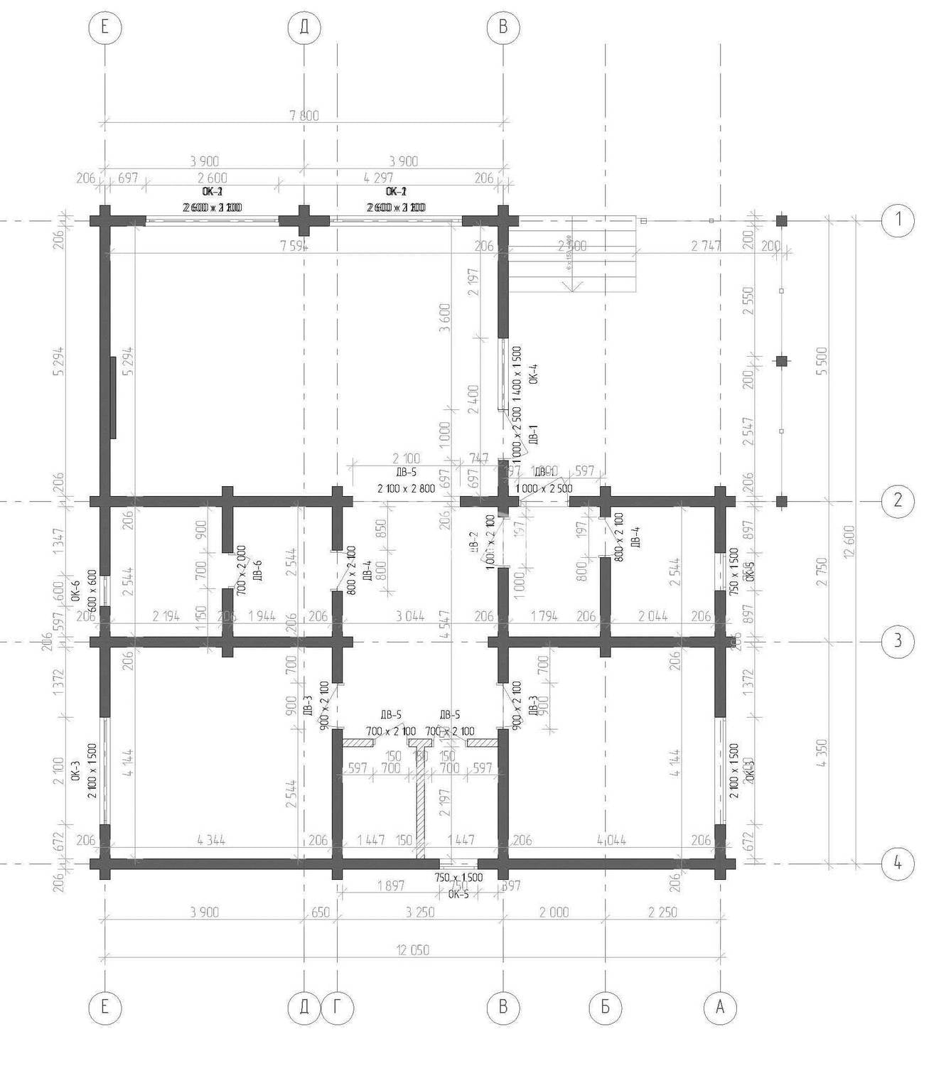
Тип строенияЖилой дом
-
МатериалПроф. брус
-
Тип фундаментаНа винтовых сваях
-
Площадь141
-
Этажность1
-
Габариты12050*12600
-
БалконНет
-
Второй светНет
-
ГаражНет
-
МансардаНет
-
Сауна/БассейнНет
-
ТеррасаДа
-
Цокольный этажНет











