Проект предоставлен партнером:
ГК «ЭкоПан - Новосибирск» /
www.ecopan.nsk.ru/
Характеристики
-
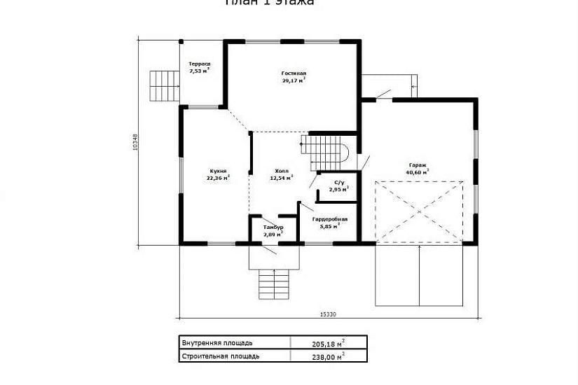
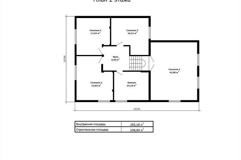
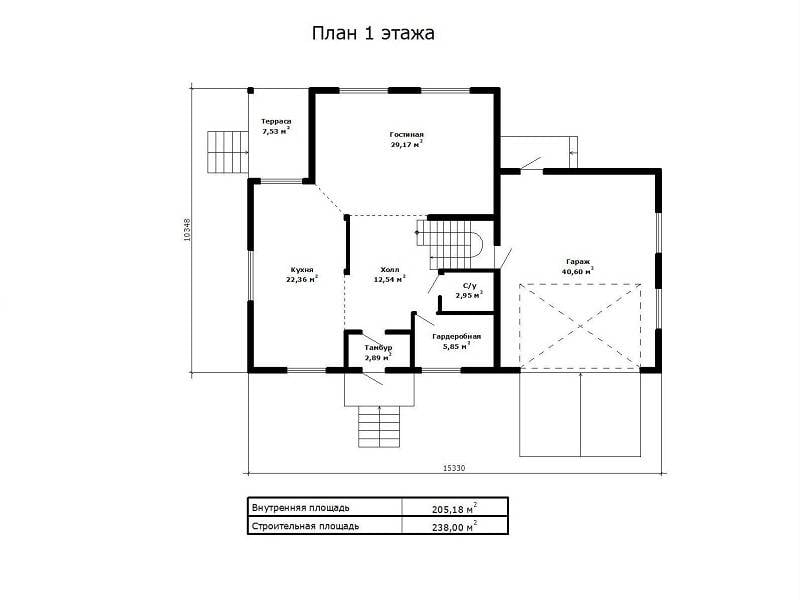
Тип строенияЖилой дом
-
МатериалSIP-панель
-
Тип фундаментаНа винтовых сваях
-
Площадь238
-
Этажность1
-
Габариты15330*10348
-
БалконНет
-
Второй светНет
-
ГаражДа
-
МансардаДа
-
Сауна/БассейнНет
-
ТеррасаДа
-
Цокольный этажНет










