Проект предоставлен партнером:
ГК «ЭкоПан - Новосибирск» /
www.ecopan.nsk.ru/
Характеристики
-
Тип строенияЖилой дом
-
МатериалSIP-панель
-
Тип фундаментаНа винтовых сваях
-
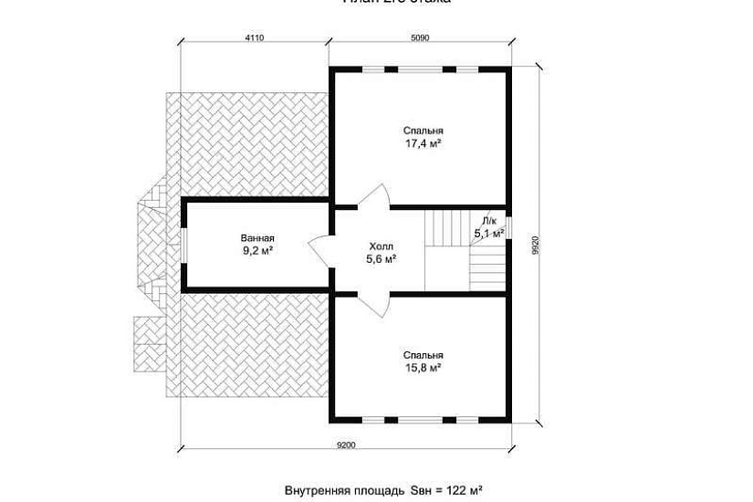
Площадь170
-
Этажность1
-
Габариты11200*9920
-
БалконНет
-
Второй светНет
-
ГаражНет
-
МансардаДа
-
Сауна/БассейнДа
-
ТеррасаДа
-
Цокольный этажНет







