Проект предоставлен партнером:
/
www.brusdomnsk.ru/
Характеристики
-
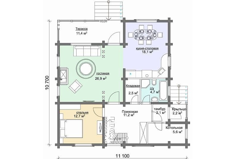
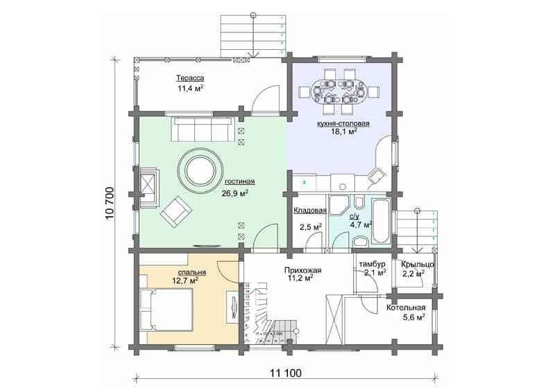
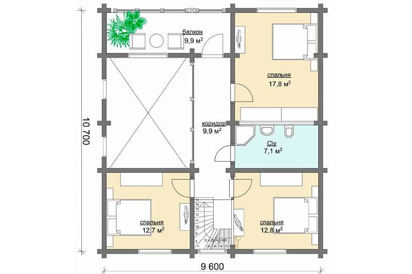
Тип строенияЖилой дом
-
МатериалПроф. брус
-
Тип фундаментаНа винтовых сваях
-
Площадь168
-
Этажность1
-
Габариты11100*10700
-
БалконДа
-
Второй светДа
-
ГаражНет
-
МансардаДа
-
Сауна/БассейнНет
-
ТеррасаДа
-
Цокольный этажНет








