Проект предоставлен партнером:
ДомДома /
domdoma.ru/
Характеристики
-
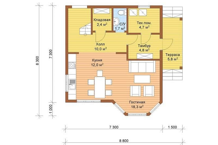
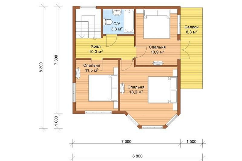
Тип строенияЖилой дом
-
МатериалSIP-панель
-
Тип фундаментаНа винтовых сваях
-
Площадь115
-
Этажность2
-
Габариты8800*8300
-
БалконДа
-
Второй светНет
-
ГаражНет
-
МансардаНет
-
Сауна/БассейнНет
-
ТеррасаДа
-
Цокольный этажНет






