Проект предоставлен партнером:
Cerebroom – Разумное Пространство /
cerebroom.ru
Характеристики
-
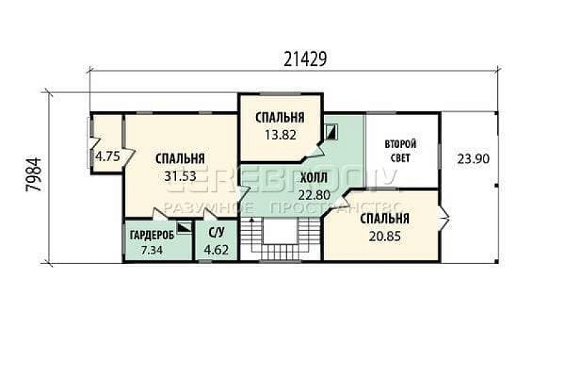
Тип строенияЖилой дом
-
МатериалSIP-панель
-
Тип фундаментаНа винтовых сваях
-
Площадь350
-
Этажность2
-
Габариты21429*8984
-
БалконНет
-
Второй светДа
-
ГаражНет
-
МансардаНет
-
Сауна/БассейнНет
-
ТеррасаДа
-
Цокольный этажНет







