Проект предоставлен партнером:
Cerebroom – Разумное Пространство /
cerebroom.ru
Характеристики
-
Тип строенияЖилой дом
-
МатериалSIP-панель
-
Тип фундаментаНа винтовых сваях
-
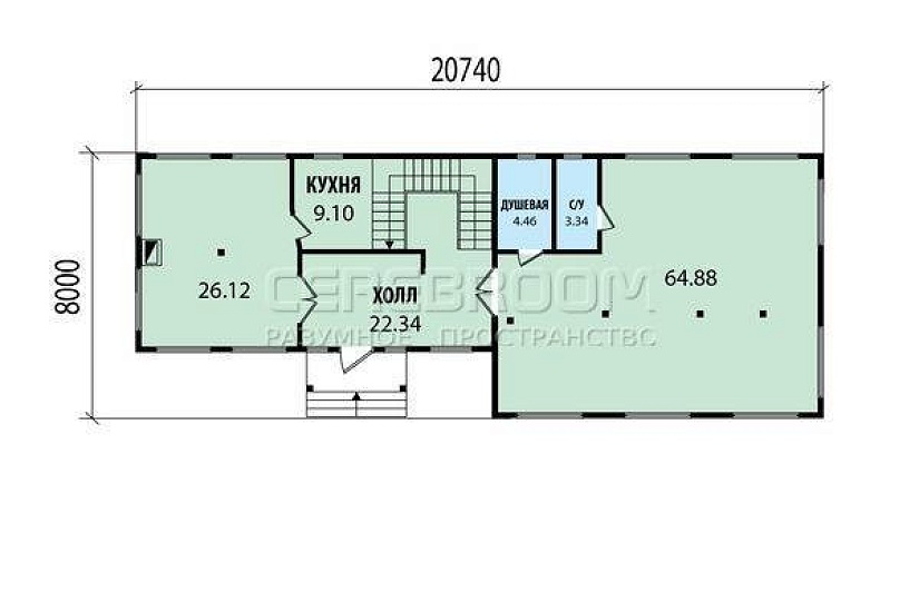
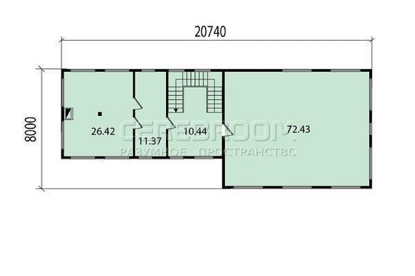
Площадь293
-
Этажность1
-
Габариты20740*8000
-
БалконНет
-
Второй светНет
-
ГаражНет
-
МансардаДа
-
Сауна/БассейнНет
-
ТеррасаНет
-
Цокольный этажНет







