Характеристики
-
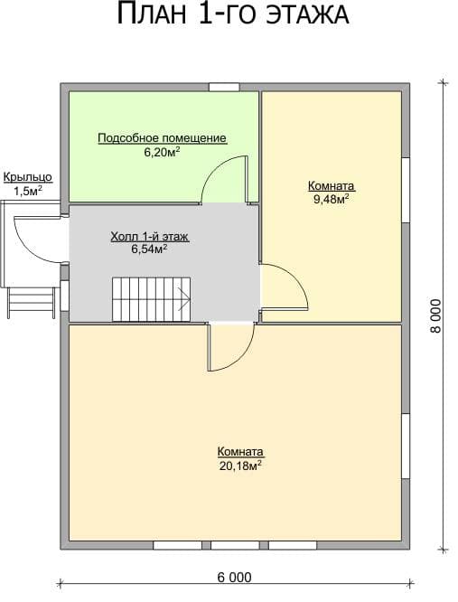
Тип строенияЖилой дом
-
МатериалДеревянный каркас
-
Тип фундаментаНа винтовых сваях
-
Площадь72
-
Этажность1
-
Габариты6000*8800
-
БалконНет
-
Второй светНет
-
ГаражНет
-
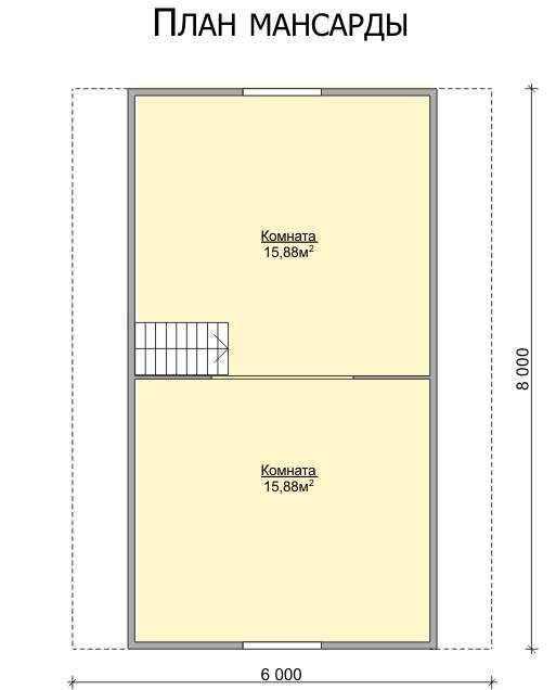
МансардаДа
-
Сауна/БассейнНет
-
ТеррасаНет
-
Цокольный этажНет






