Характеристики
-
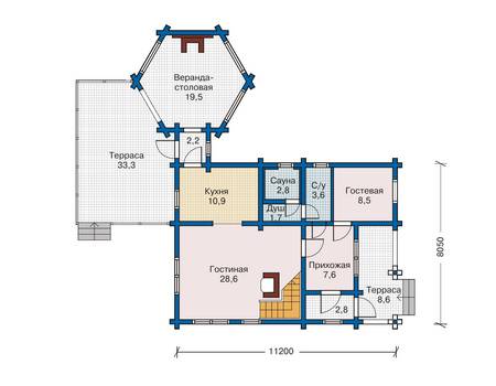
Тип строенияЖилой дом
-
МатериалSIP-панель
-
Тип фундаментаНа винтовых сваях
-
Площадь182
-
Этажность1
-
Габариты11200*8050
-
БалконДа
-
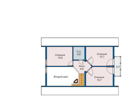
Второй светДа
-
ГаражНет
-
МансардаДа
-
Сауна/БассейнДа
-
ТеррасаДа
-
Цокольный этажНет






