Характеристики
-
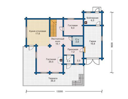
Тип строенияЖилой дом
-
МатериалSIP-панель
-
Тип фундаментаНа винтовых сваях
-
Площадь191
-
Этажность1
-
Габариты13300*9600
-
БалконНет
-
Второй светДа
-
ГаражДа
-
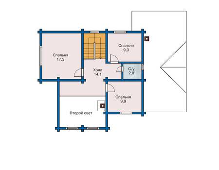
МансардаДа
-
Сауна/БассейнНет
-
ТеррасаДа
-
Цокольный этажНет






