Характеристики
-
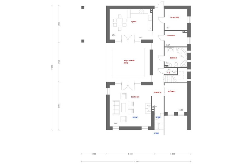
Тип строенияЖилой дом
-
МатериалМеталлокаркас
-
Тип фундаментаНа винтовых сваях
-
Площадь280
-
Этажность2
-
Габариты15080*17160
-
БалконДа
-
Второй светНет
-
ГаражДа
-
МансардаДа
-
Сауна/БассейнНет
-
ТеррасаДа
-
Цокольный этажНет






