Характеристики
-
Тип строенияЖилой дом
-
МатериалКерамзитобетон
-
Тип фундаментаНа винтовых сваях
-
Площадь320
-
Этажность1
-
Габариты11400*16870
-
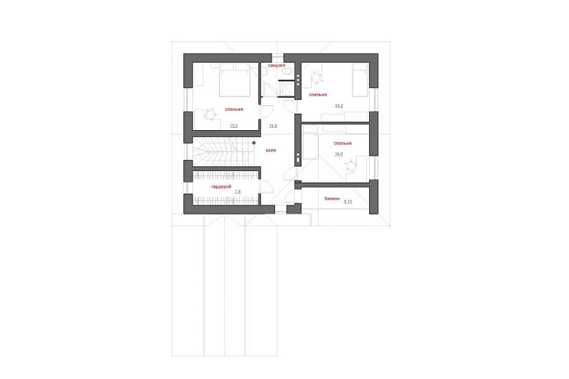
БалконДа
-
Второй светНет
-
ГаражДа
-
МансардаДа
-
Сауна/БассейнНет
-
ТеррасаДа
-
Цокольный этажНет






