Характеристики
-
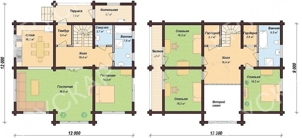
Тип строенияЖилой дом
-
МатериалОцилиндрованное бревно
-
Тип фундаментаНа винтовых сваях
-
Площадь216
-
Этажность1
-
Габариты12000*12000
-
БалконДа
-
Второй светДа
-
ГаражНет
-
МансардаДа
-
Сауна/БассейнНет
-
ТеррасаДа
-
Цокольный этажНет





