Характеристики
-
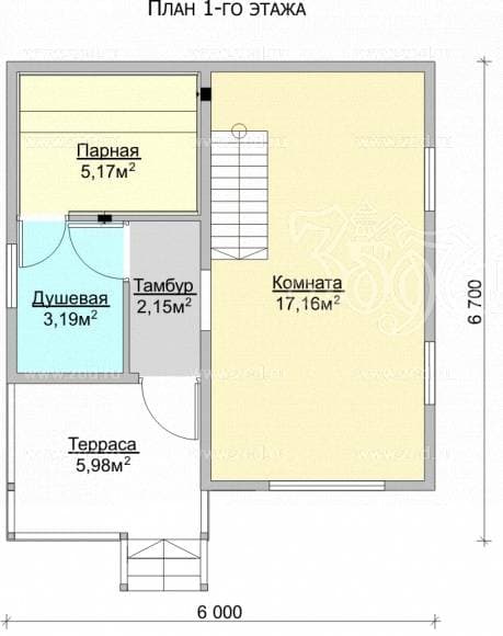
Тип строенияБаня
-
МатериалКлееный брус
-
Тип фундаментаНа винтовых сваях
-
Площадь60
-
Этажность1
-
Габариты6000*6000
-
БалконНет
-
Второй светДа
-
ГаражНет
-
МансардаДа
-
Сауна/БассейнНет
-
ТеррасаДа
-
Цокольный этажНет










