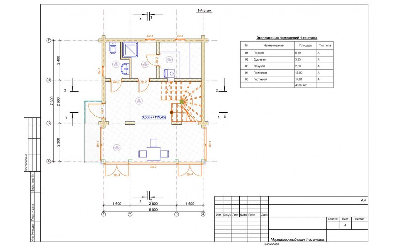
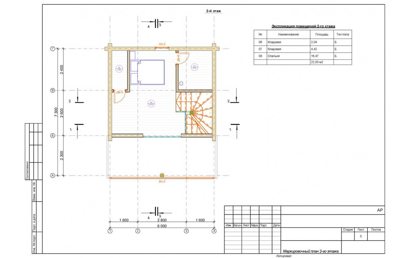
Характеристики
-
Тип строенияБаня
-
МатериалКлееный брус
-
Тип фундаментаНа винтовых сваях
-
Площадь126
-
Этажность1
-
Габариты6000*7300
-
БалконНет
-
Второй светНет
-
ГаражНет
-
МансардаДа
-
Сауна/БассейнНет
-
ТеррасаНет
-
Цокольный этажНет






