Характеристики
-
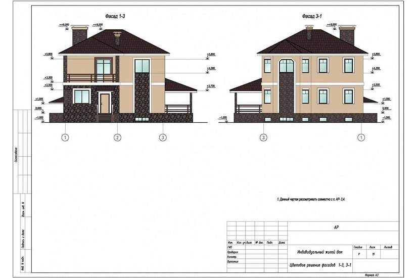
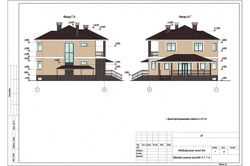
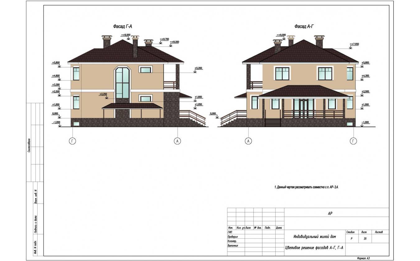
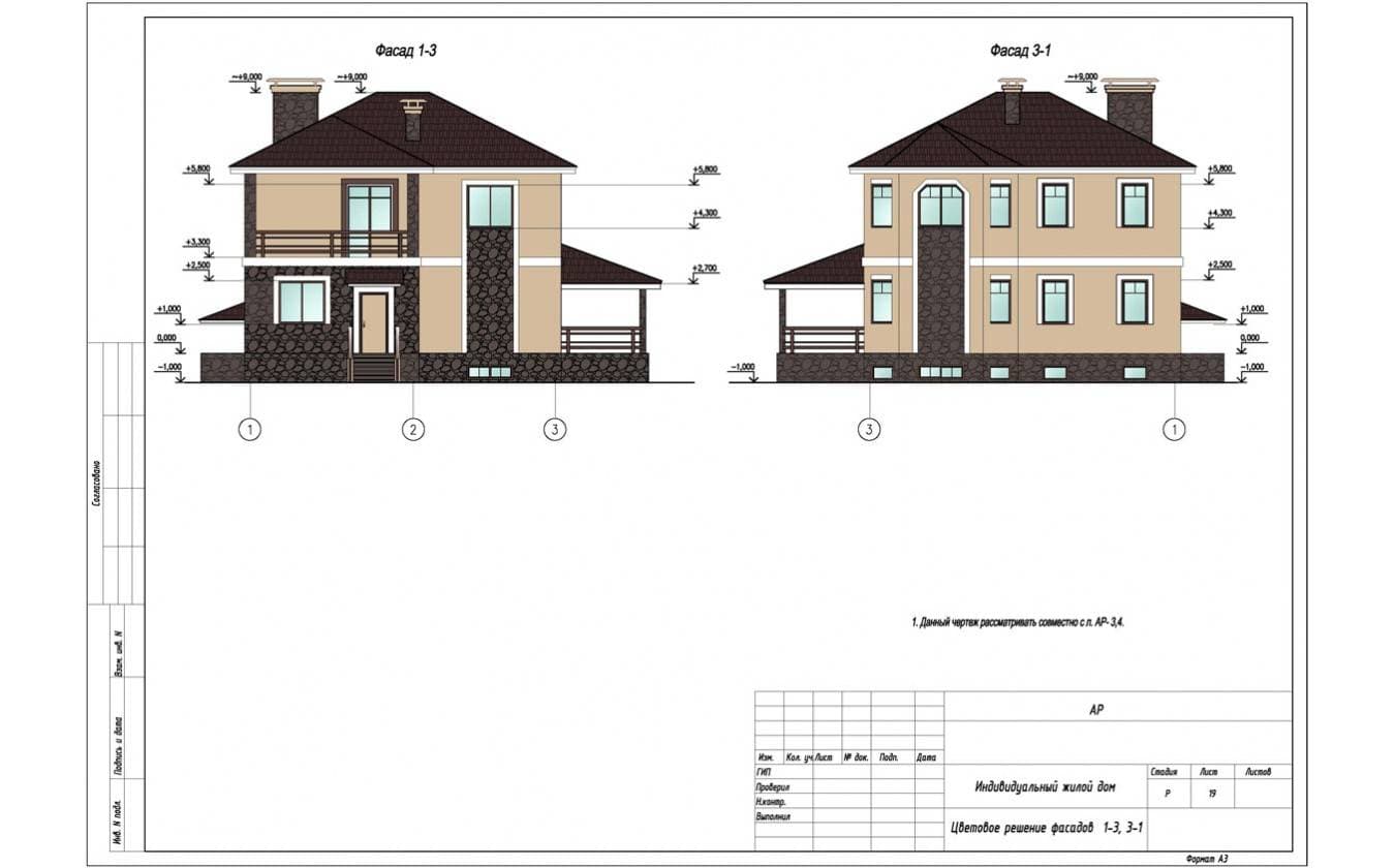
Тип строенияЖилой дом
-
МатериалГазосиликат
-
Тип фундаментаНа винтовых сваях
-
Площадь324
-
Этажность2
-
Габариты13500*12000
-
БалконДа
-
Второй светДа
-
ГаражНет
-
МансардаНет
-
Сауна/БассейнНет
-
ТеррасаДа
-
Цокольный этажДа







