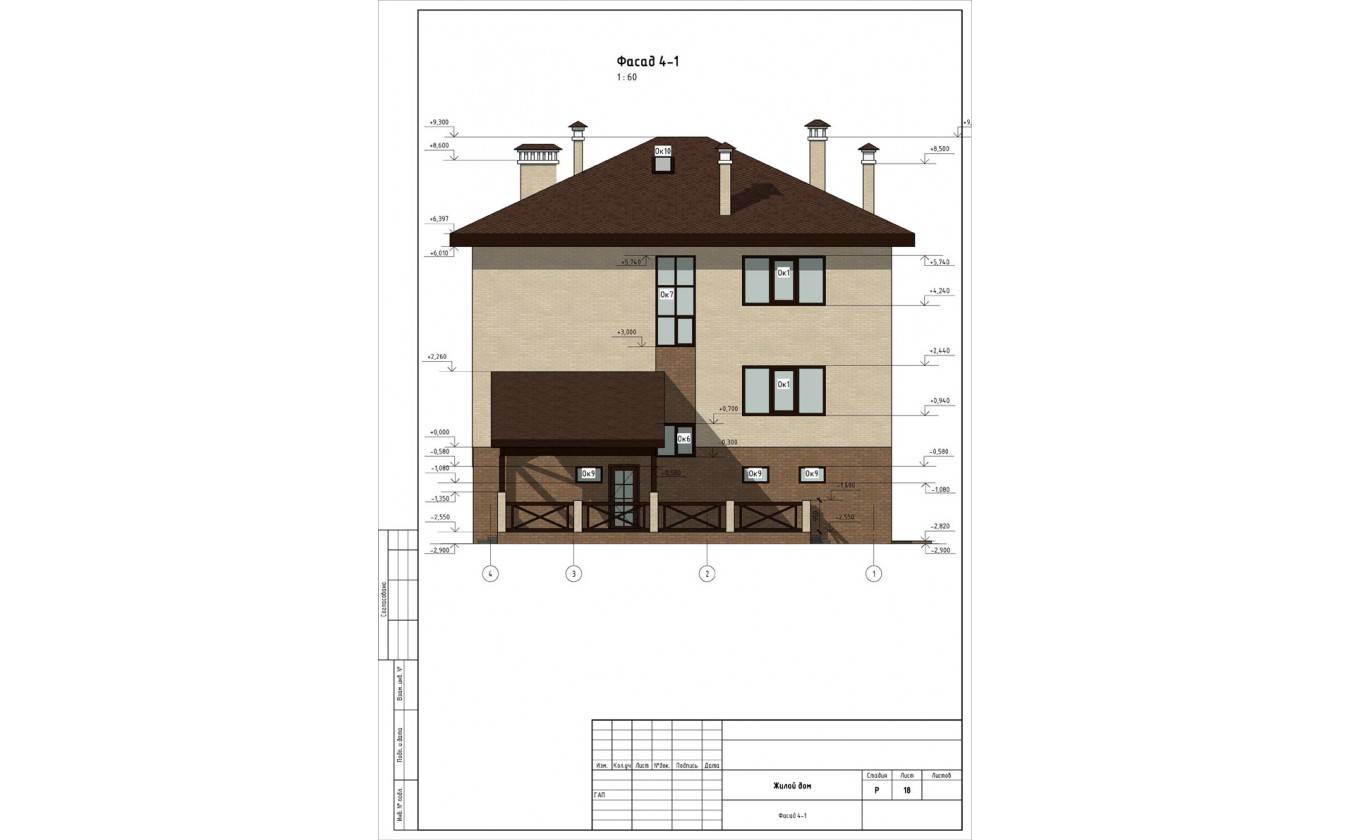
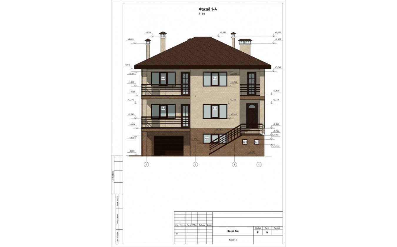
Характеристики
-
Тип строенияЖилой дом
-
МатериалГазосиликат
-
Тип фундаментаНа винтовых сваях
-
Площадь345
-
Этажность3
-
Габариты11500*10000
-
БалконДа
-
Второй светНет
-
ГаражДа
-
МансардаНет
-
Сауна/БассейнДа
-
ТеррасаНет
-
Цокольный этажДа











