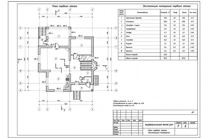
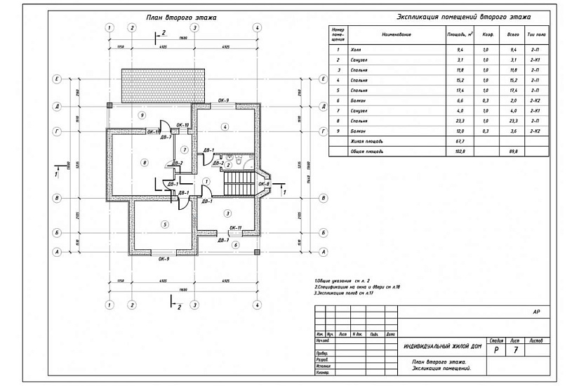
Характеристики
-
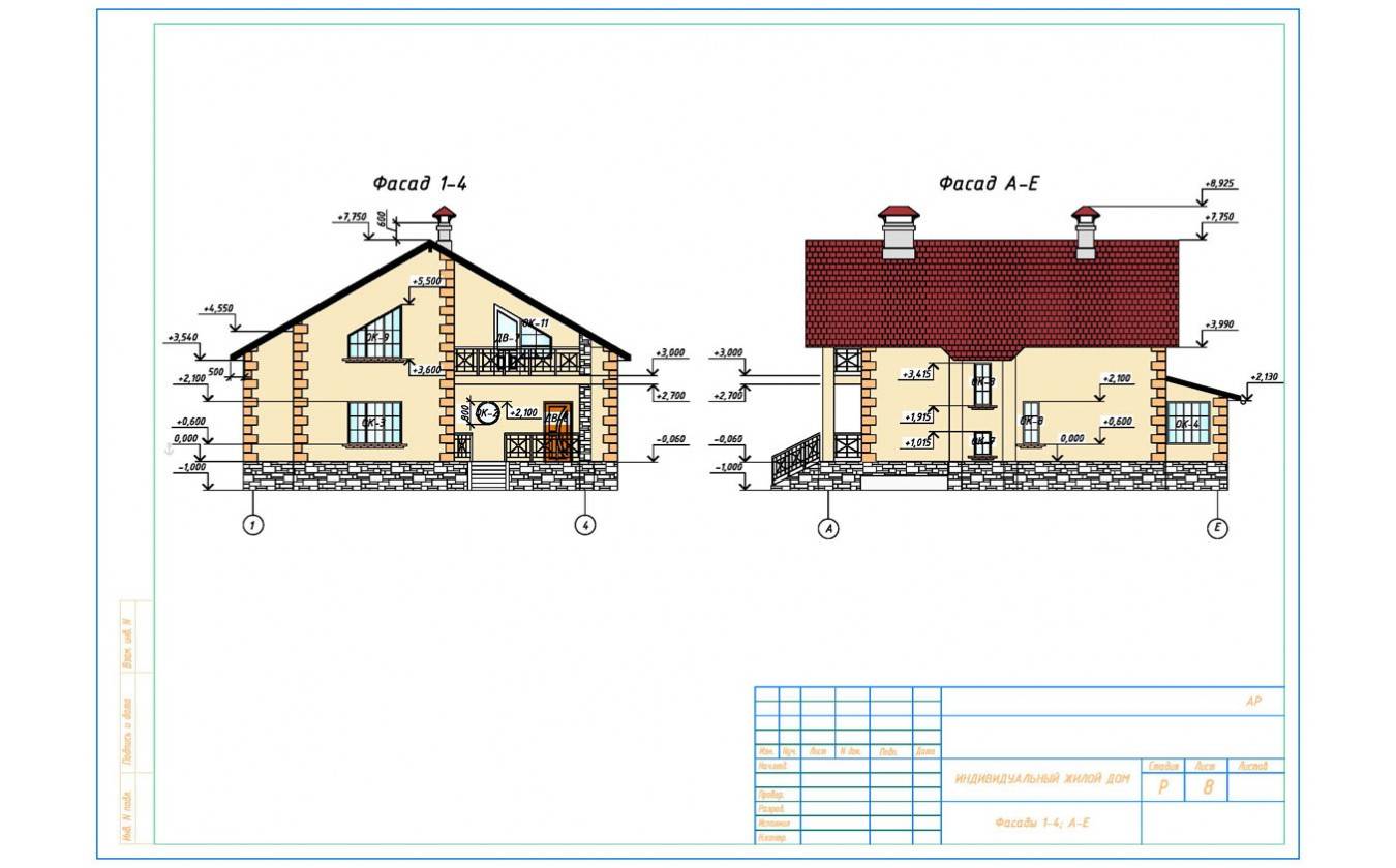
Тип строенияЖилой дом
-
МатериалГазосиликат
-
Тип фундаментаНа винтовых сваях
-
Площадь325
-
Этажность2
-
Габариты11600*13600
-
БалконДа
-
Второй светНет
-
ГаражНет
-
МансардаДа
-
Сауна/БассейнНет
-
ТеррасаНет
-
Цокольный этажДа







