Характеристики
-
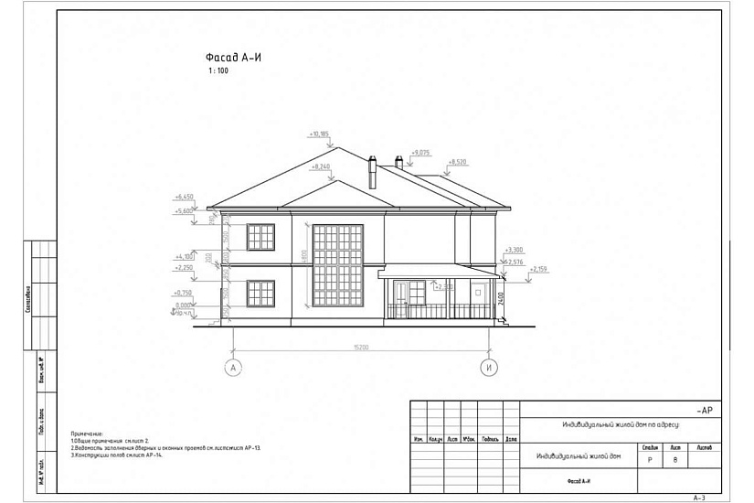
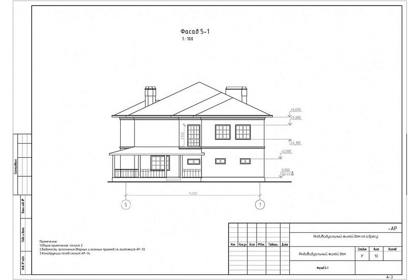
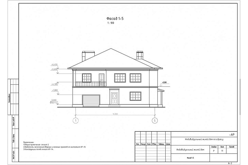
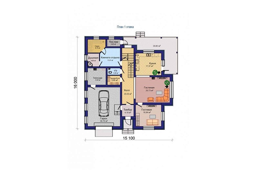
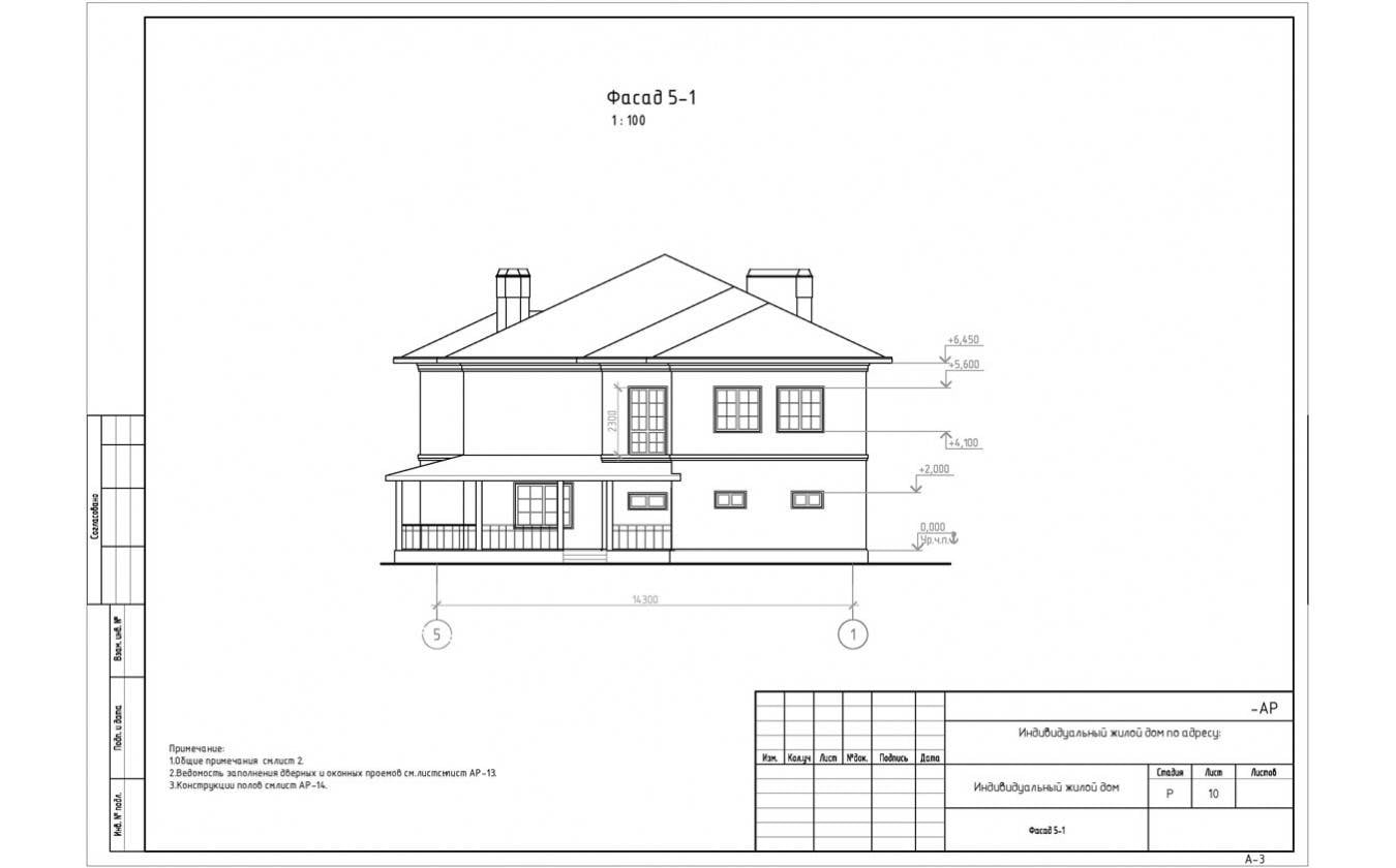
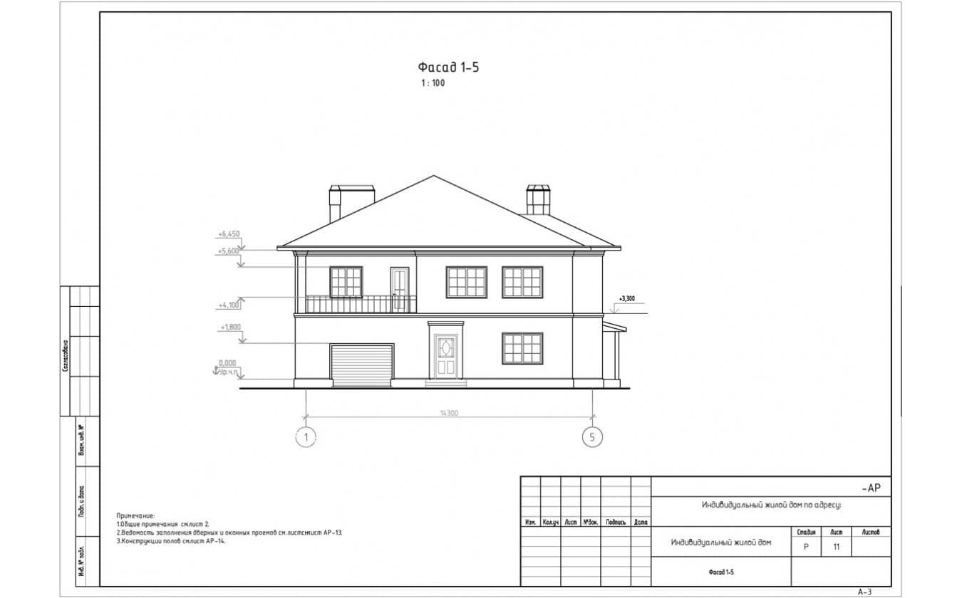
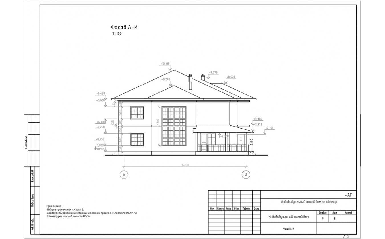
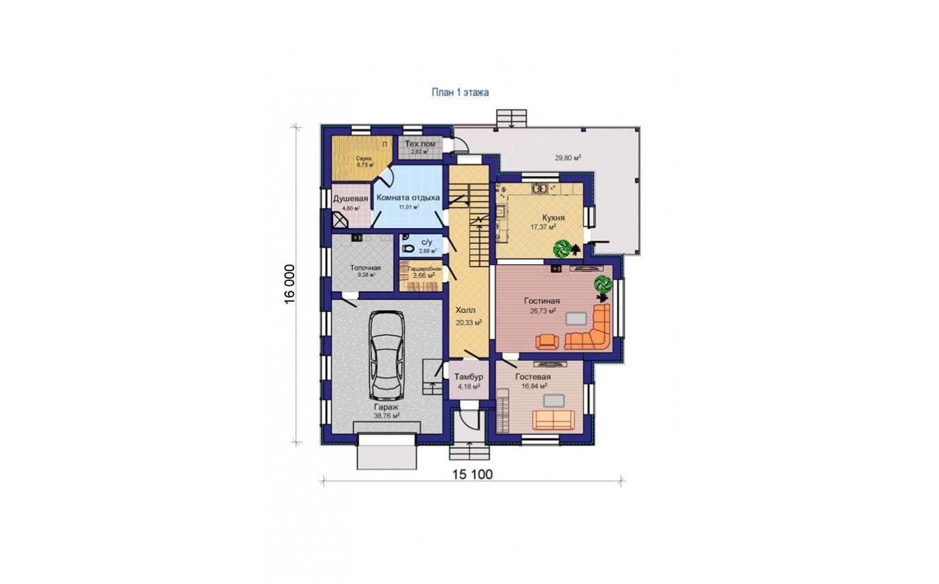
Тип строенияЖилой дом
-
МатериалГазосиликат
-
Тип фундаментаНа винтовых сваях
-
Площадь354
-
Этажность2
-
Габариты15100*16000
-
БалконДа
-
Второй светДа
-
ГаражДа
-
МансардаНет
-
Сауна/БассейнНет
-
ТеррасаНет
-
Цокольный этажНет









