Характеристики
-
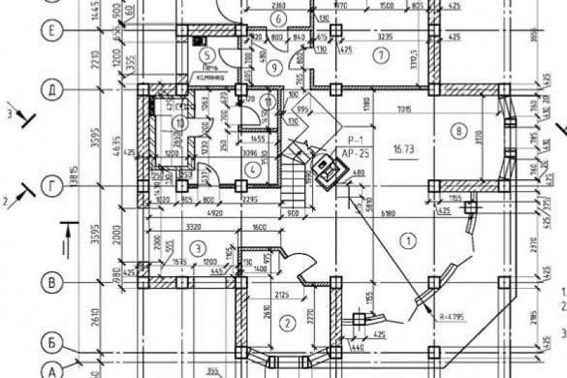
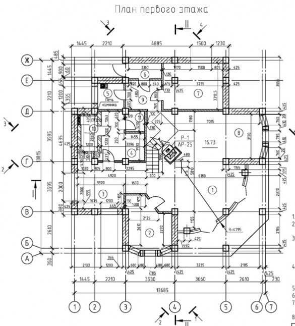
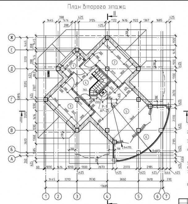
Тип строенияЖилой дом
-
МатериалГазосиликат
-
Тип фундаментаНа винтовых сваях
-
Площадь319
-
Этажность1
-
Габариты13685*13815
-
БалконДа
-
Второй светНет
-
ГаражНет
-
МансардаДа
-
Сауна/БассейнДа
-
ТеррасаНет
-
Цокольный этажНет









