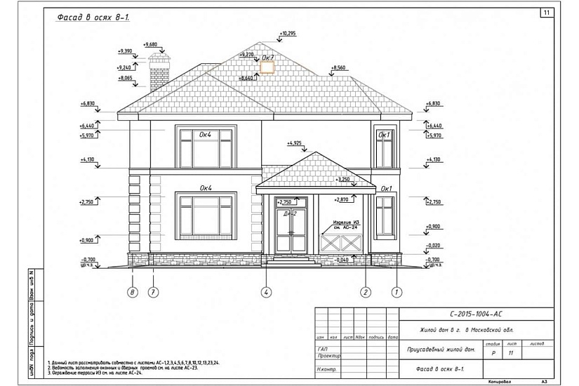
Характеристики
-
Тип строенияЖилой дом
-
МатериалКирпич
-
Тип фундаментаНа винтовых сваях
-
Площадь305
-
Этажность2
-
Габариты12750*16650
-
БалконДа
-
Второй светДа
-
ГаражНет
-
МансардаНет
-
Сауна/БассейнНет
-
ТеррасаДа
-
Цокольный этажНет











