Характеристики
-
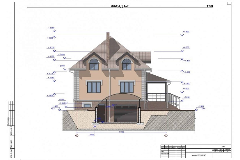
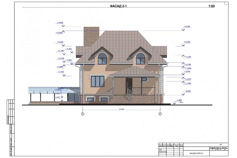
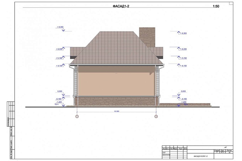
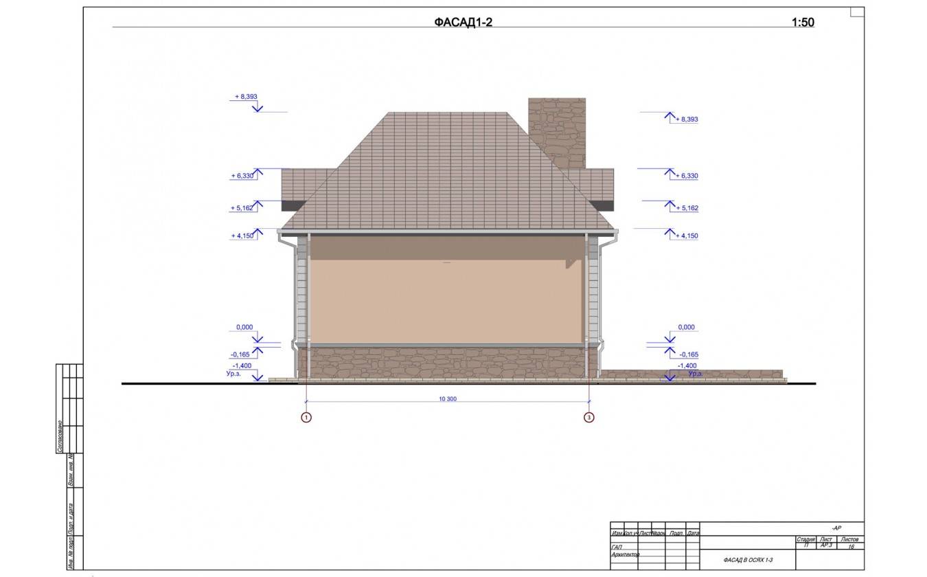
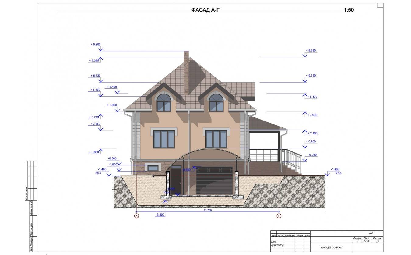
Тип строенияЖилой дом
-
МатериалКирпич
-
Тип фундаментаНа винтовых сваях
-
Площадь272
-
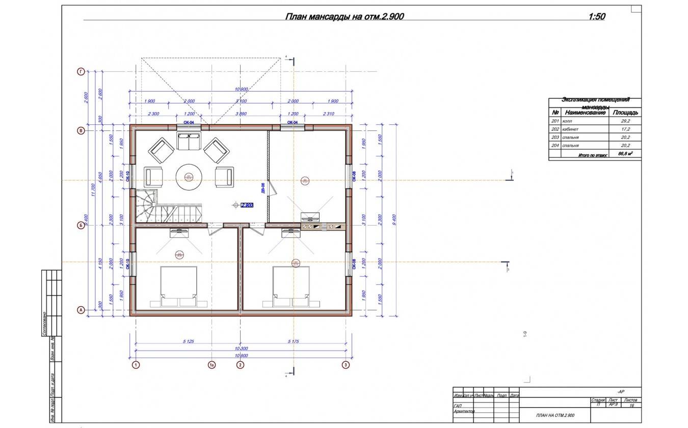
Этажность2
-
Габариты10900*11700
-
БалконНет
-
Второй светНет
-
ГаражДа
-
МансардаДа
-
Сауна/БассейнНет
-
ТеррасаНет
-
Цокольный этажДа










