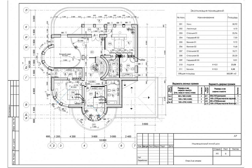
Характеристики
-
Тип строенияЖилой дом
-
МатериалКирпич
-
Тип фундаментаНа винтовых сваях
-
Площадь617
-
Этажность2.5
-
Габариты18600*19200
-
БалконДа
-
Второй светНет
-
ГаражДа
-
МансардаНет
-
Сауна/БассейнДа
-
ТеррасаНет
-
Цокольный этажДа




