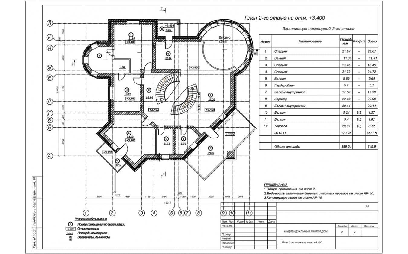
Характеристики
-
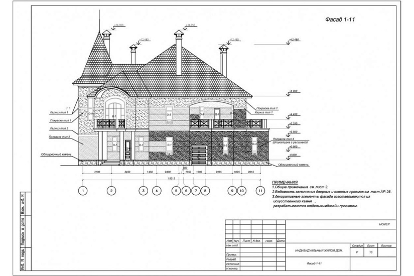
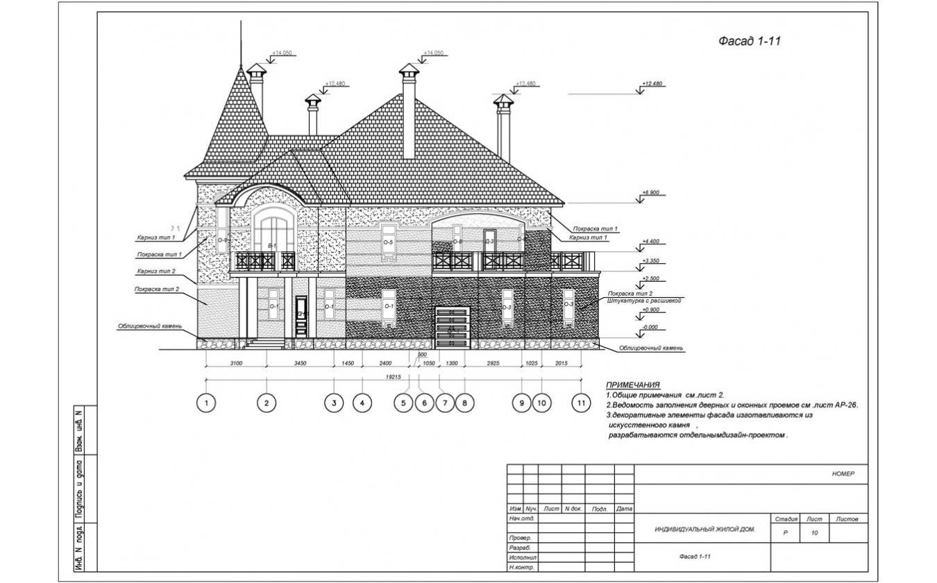
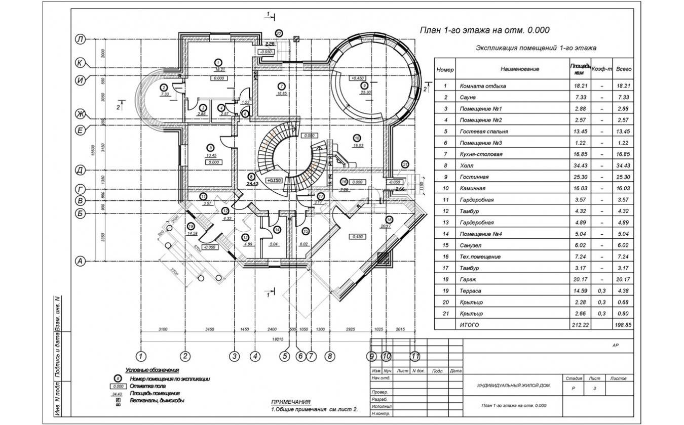
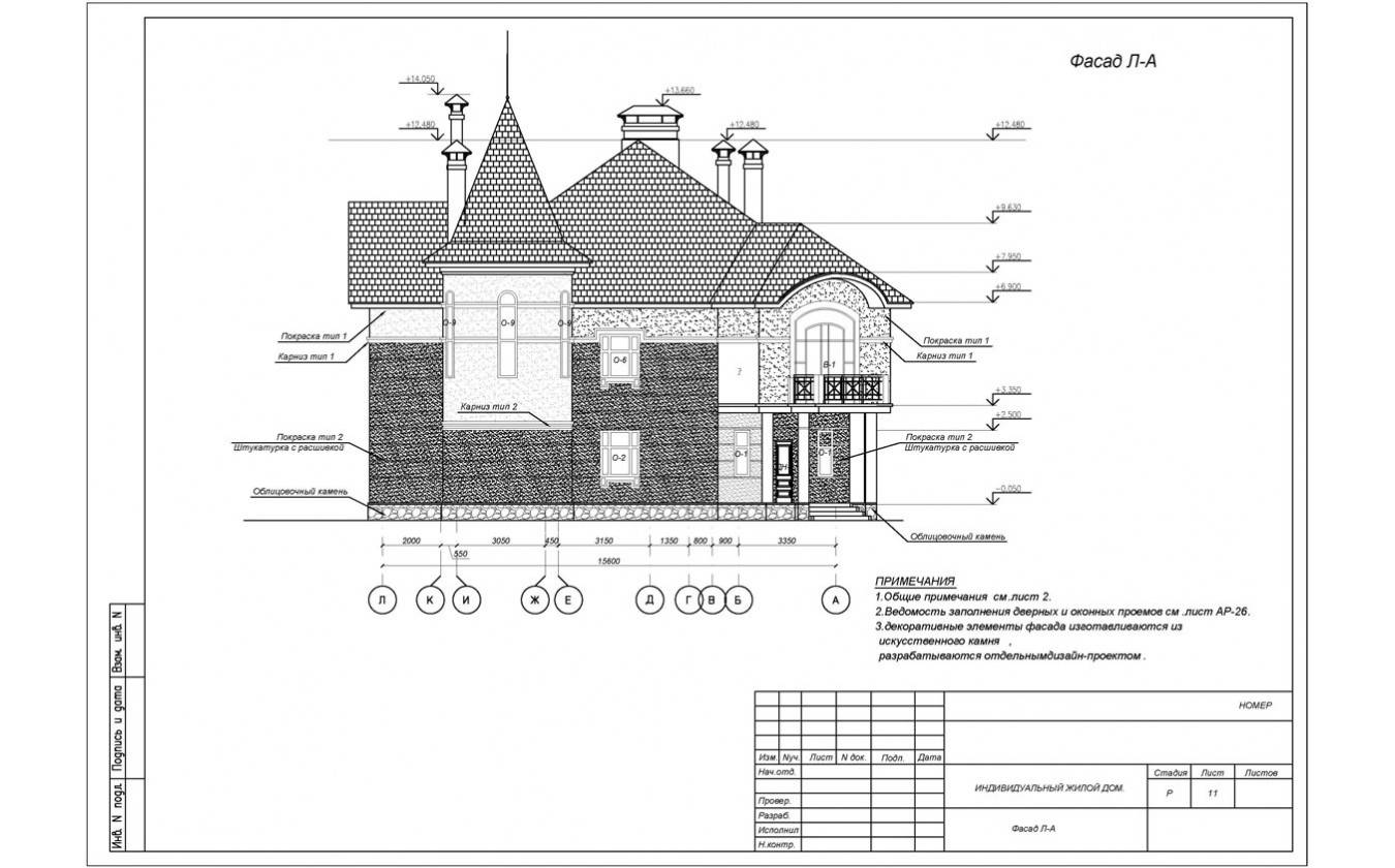
Тип строенияЖилой дом
-
МатериалКирпич
-
Тип фундаментаНа винтовых сваях
-
Площадь601
-
Этажность2
-
Габариты19215*15800
-
БалконДа
-
Второй светДа
-
ГаражДа
-
МансардаНет
-
Сауна/БассейнДа
-
ТеррасаДа
-
Цокольный этажНет









