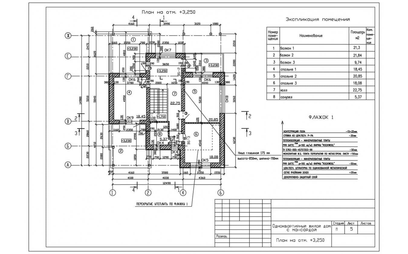
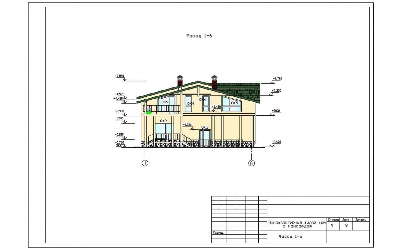
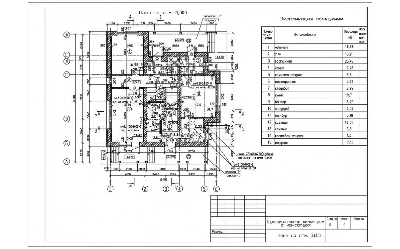
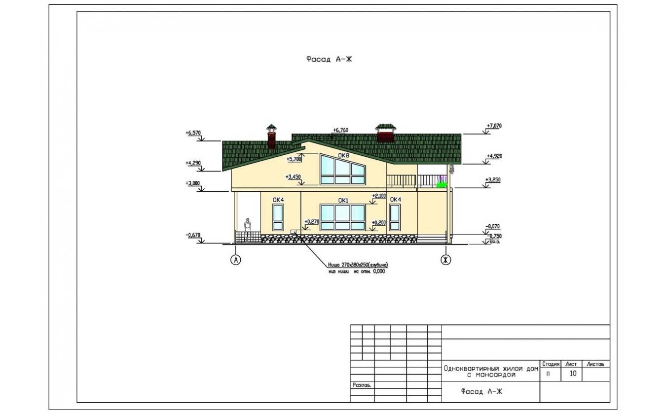
Характеристики
-
Тип строенияЖилой дом
-
МатериалКирпич
-
Тип фундаментаНа винтовых сваях
-
Площадь286
-
Этажность1
-
Габариты12490*14980
-
БалконДа
-
Второй светНет
-
ГаражНет
-
МансардаДа
-
Сауна/БассейнДа
-
ТеррасаДа
-
Цокольный этажНет






