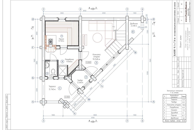
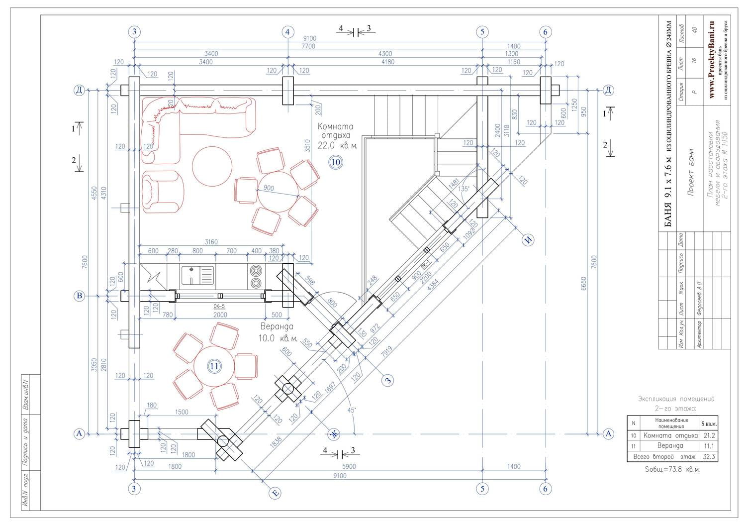
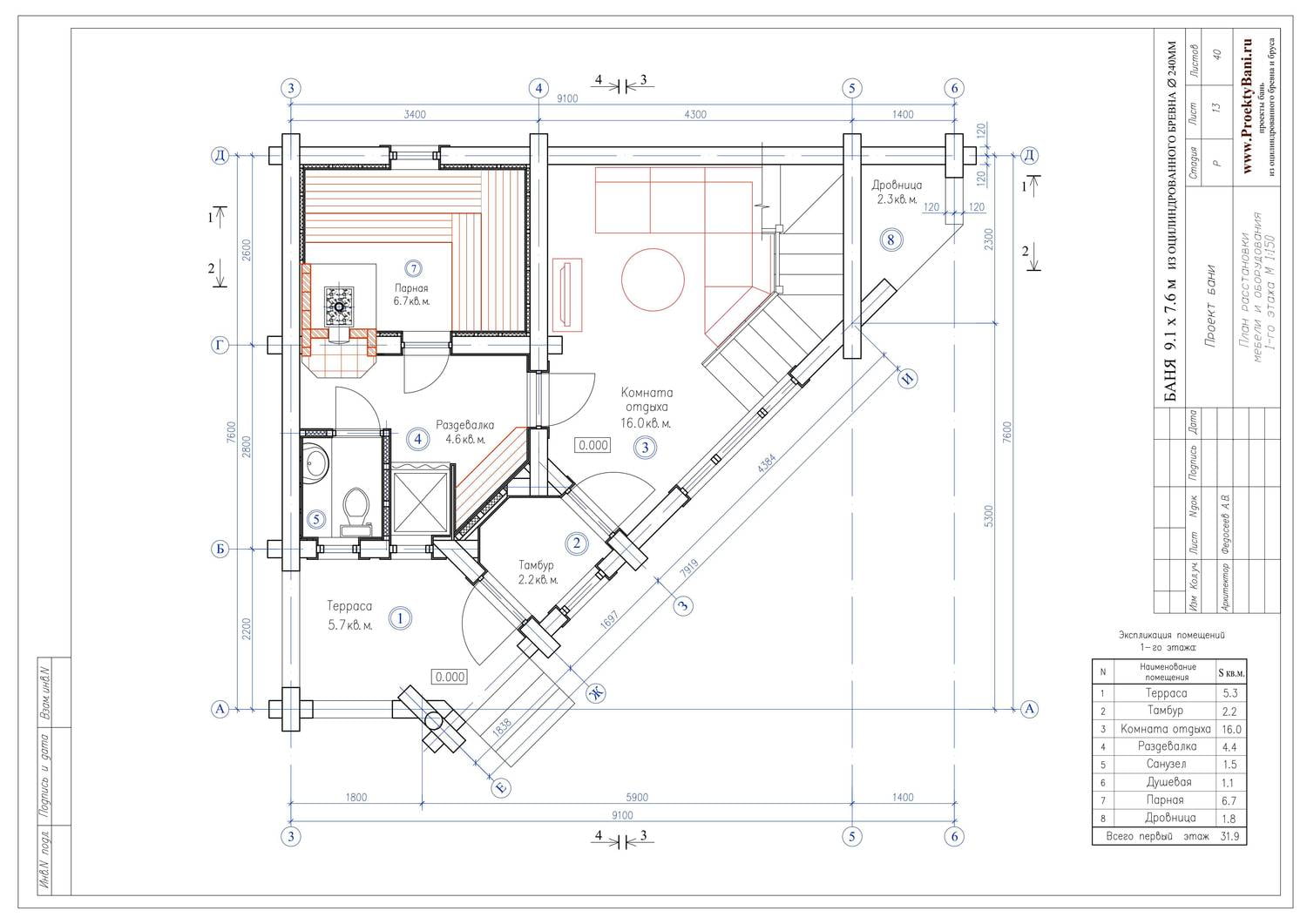
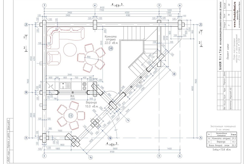
Характеристики
-
Тип строенияБаня
-
МатериалБревно
-
Тип фундаментаНа винтовых сваях
-
Площадь140
-
Этажность1
-
Габариты8х9
-
БалконДа
-
Второй светДа
-
ГаражНет
-
МансардаДа
-
Сауна/БассейнДа
-
ТеррасаНет
-
Цокольный этажНет




