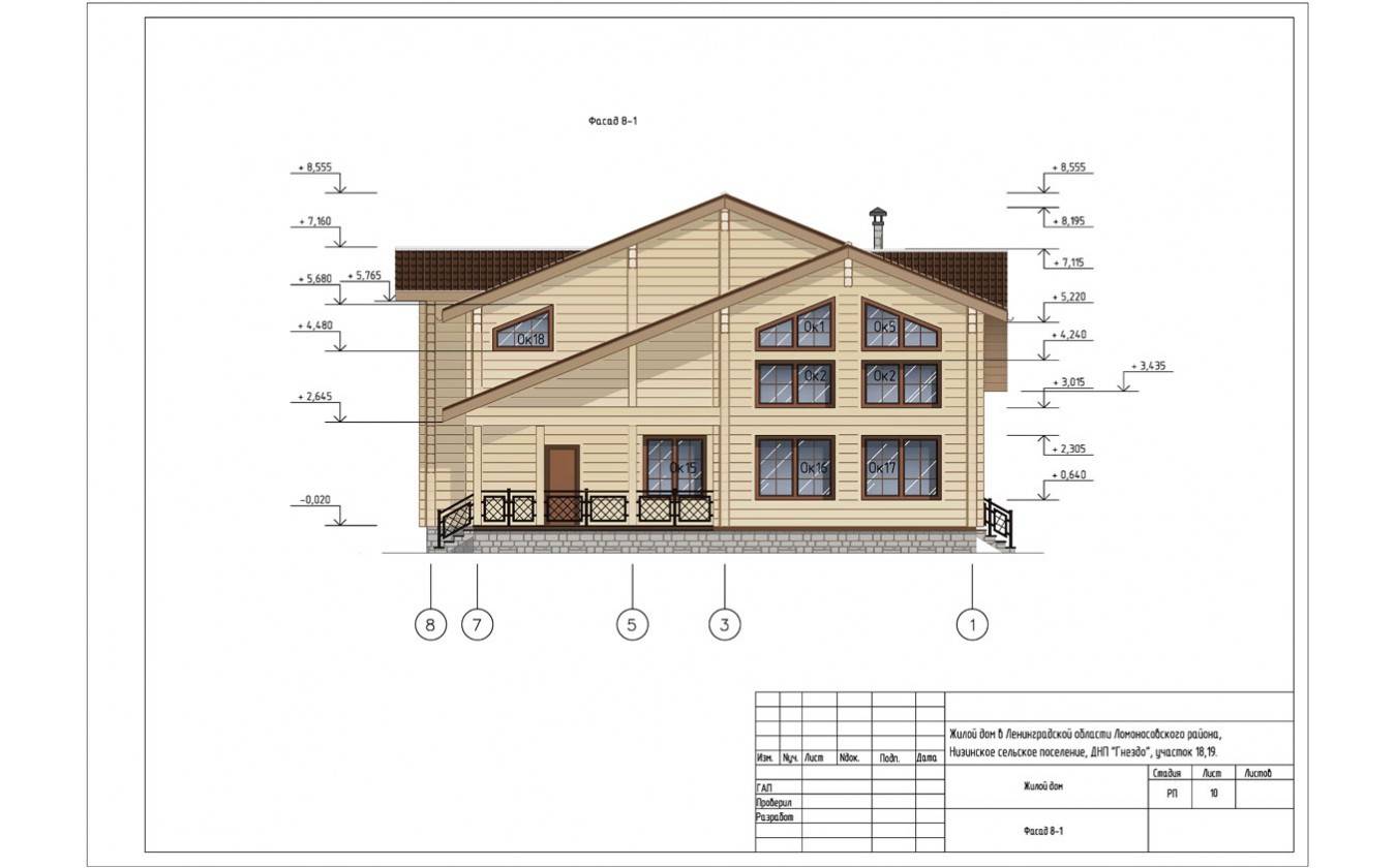
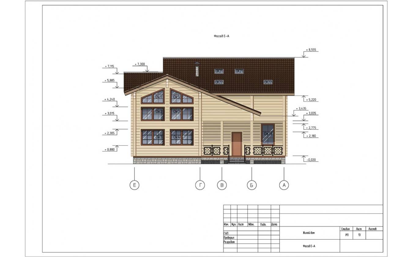
Характеристики
-
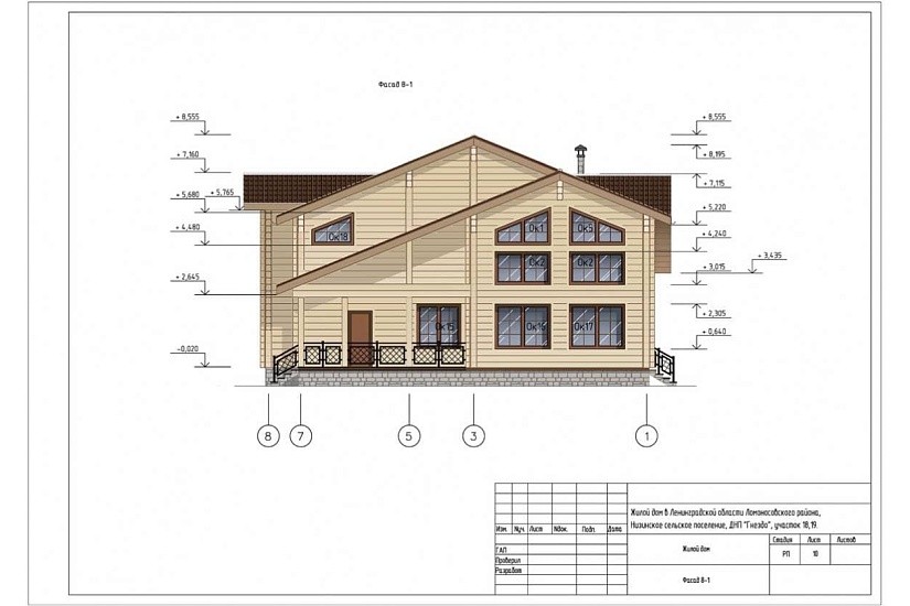
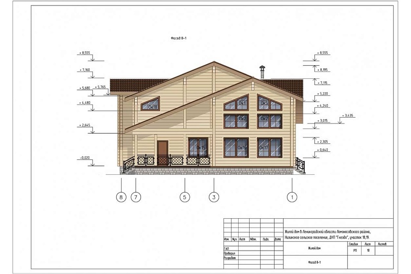
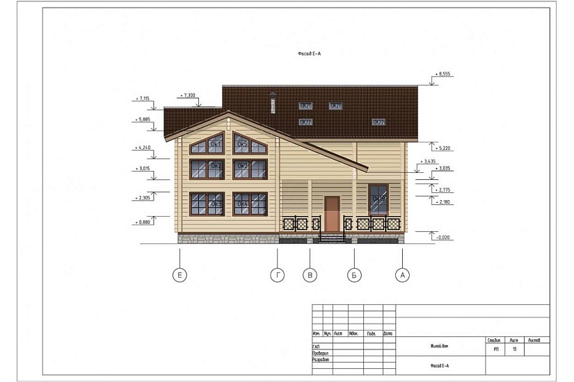
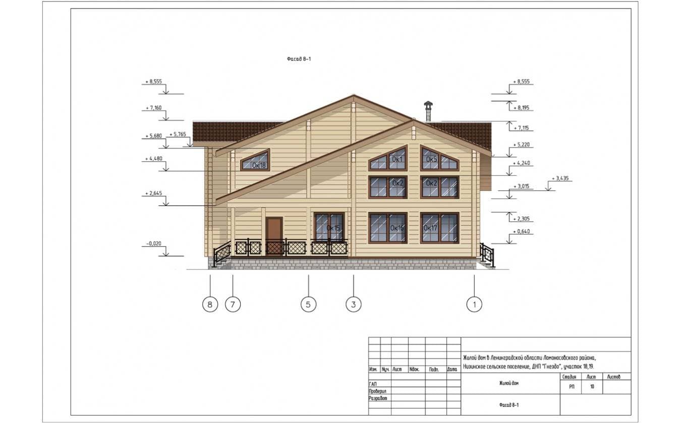
Тип строенияЖилой дом
-
МатериалБрус
-
Тип фундаментаНа винтовых сваях
-
Площадь250
-
Этажность2
-
Габариты13960х13000
-
БалконНет
-
Второй светДа
-
ГаражНет
-
МансардаНет
-
Сауна/БассейнНет
-
ТеррасаДа
-
Цокольный этажНет






