Характеристики
-
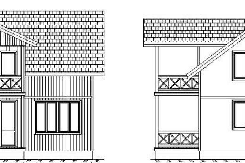
Тип строенияЖилой дом
-
МатериалДеревянный каркас
-
Тип фундаментаНа винтовых сваях
-
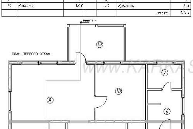
Площадь192
-
Этажность1
-
Габариты12x8
-
БалконДа
-
Второй светНет
-
ГаражНет
-
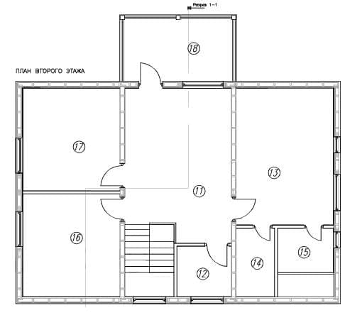
МансардаДа
-
Сауна/БассейнДа
-
ТеррасаДа
-
Цокольный этажНет




