Характеристики
-
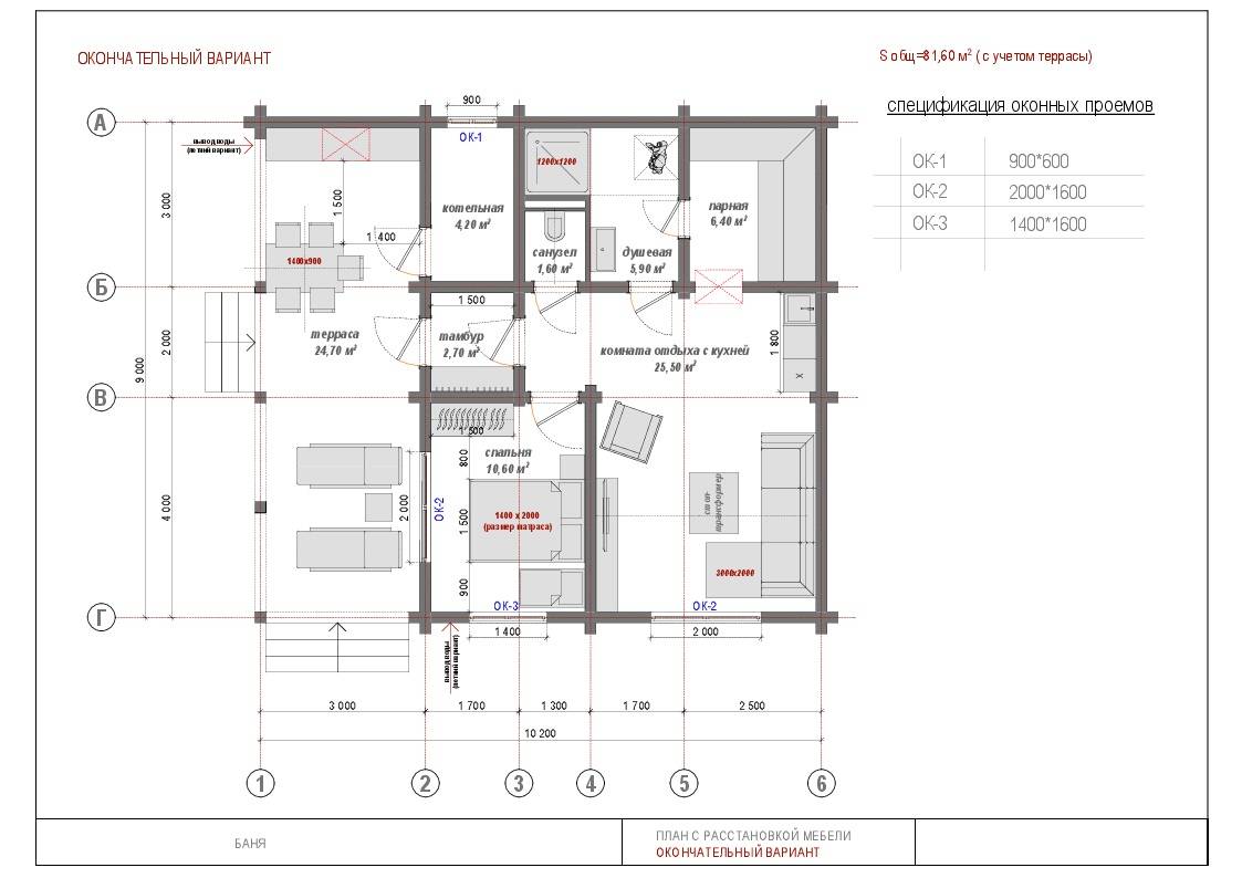
Тип строенияБаня
-
МатериалБрус
-
Тип фундаментаНа винтовых сваях
-
Площадь81
-
Этажность1
-
Габариты9000x10200
-
БалконНет
-
Второй светНет
-
ГаражНет
-
МансардаДа
-
Сауна/БассейнНет
-
ТеррасаНет
-
Цокольный этажНет



