Характеристики
-
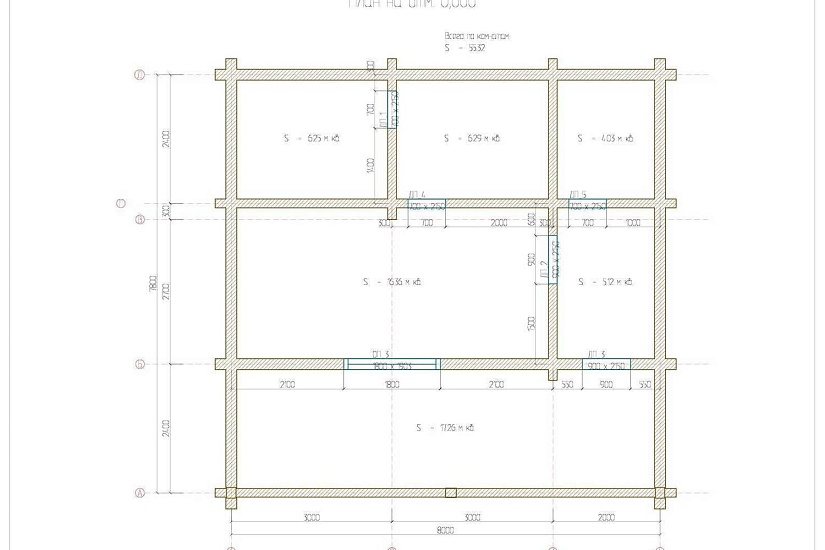
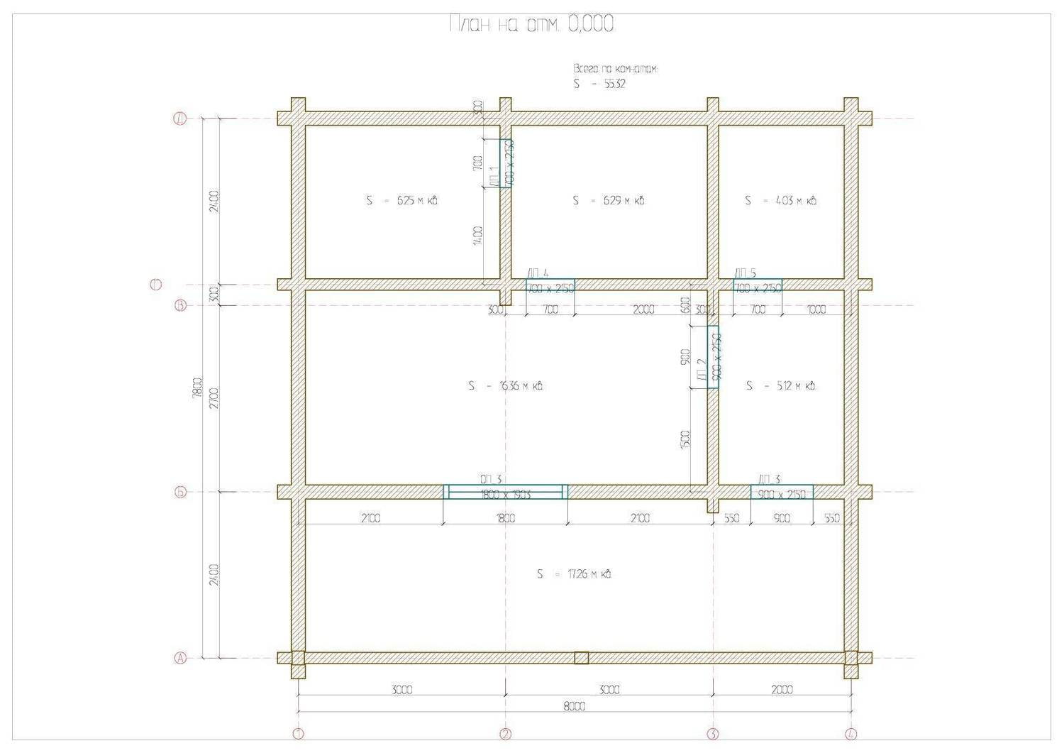
Тип строенияЖилой дом
-
МатериалМеталлокаркас
-
Тип фундаментаНа винтовых сваях
-
Площадь95
-
Этажность1
-
Габариты7800x8000
-
БалконНет
-
Второй светНет
-
ГаражНет
-
МансардаДа
-
Сауна/БассейнНет
-
ТеррасаНет
-
Цокольный этажНет






