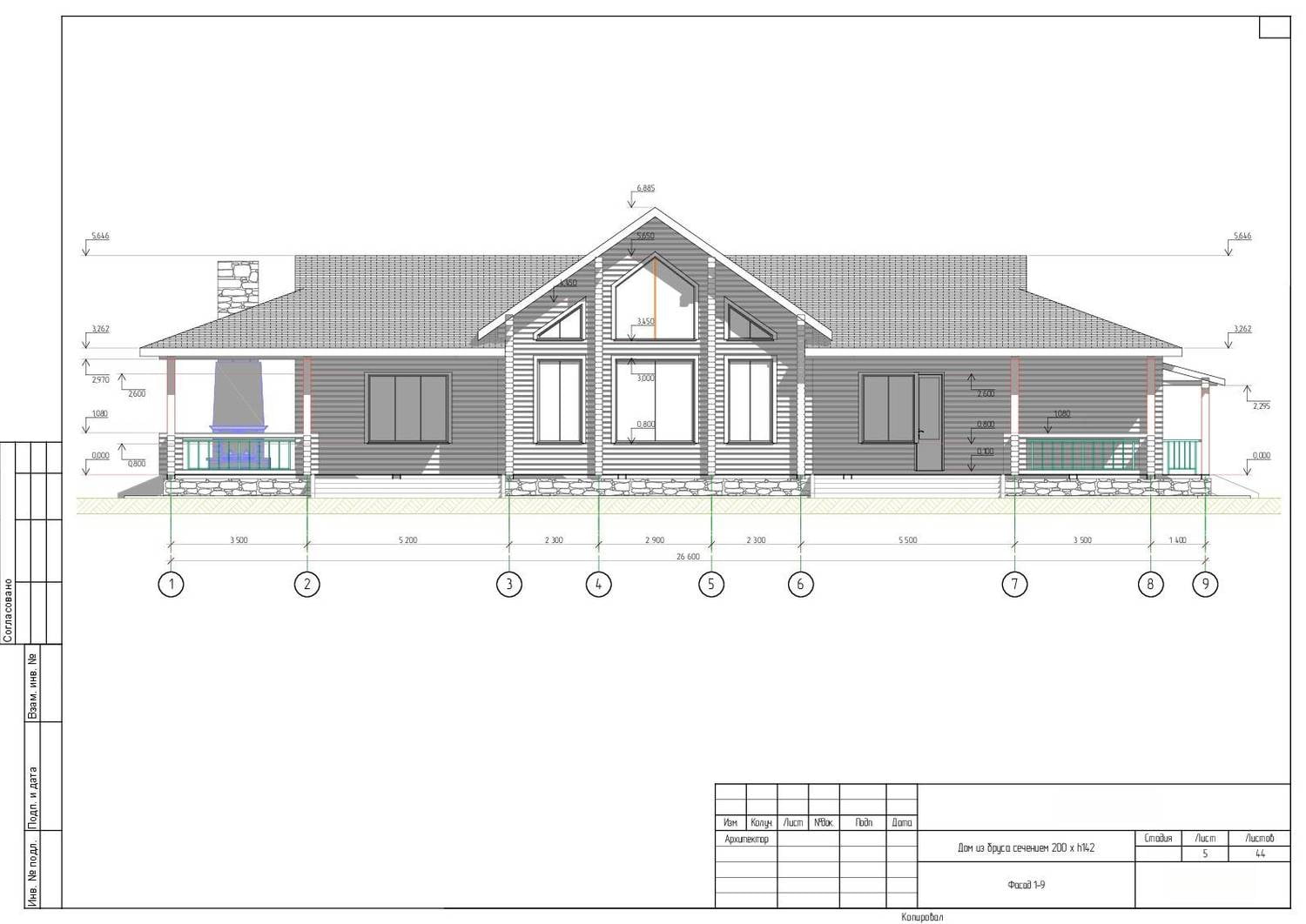
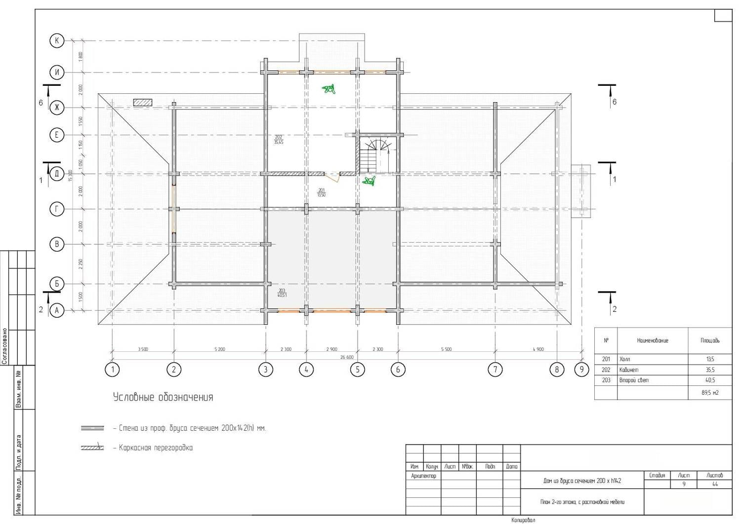
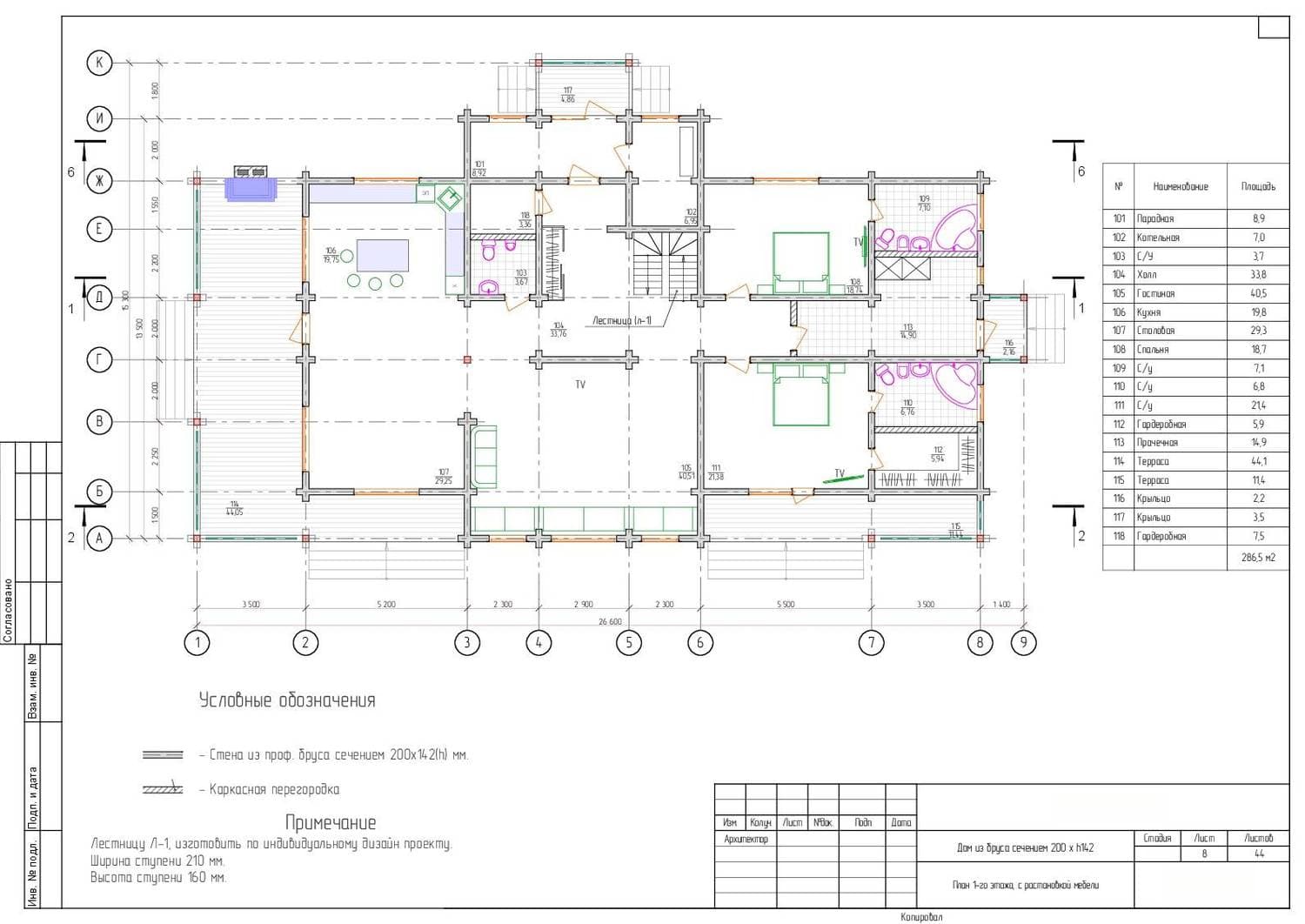
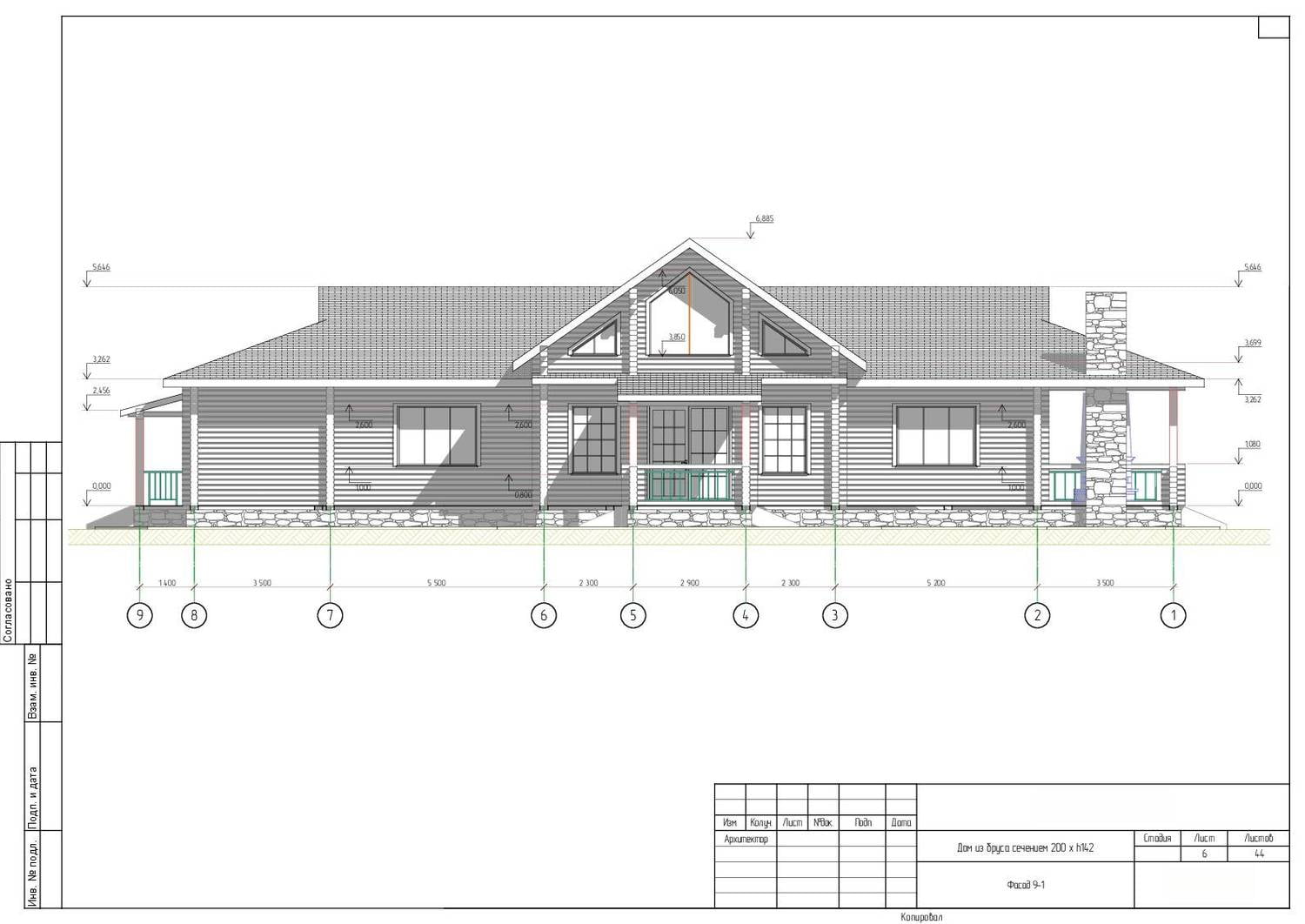
Характеристики
-
Тип строенияЖилой дом
-
МатериалБрус
-
Тип фундаментаНа винтовых сваях
-
Площадь376
-
Этажность1
-
Габариты15300x26600
-
БалконНет
-
Второй светДа
-
ГаражНет
-
МансардаДа
-
Сауна/БассейнНет
-
ТеррасаДа
-
Цокольный этажНет





