Характеристики
-
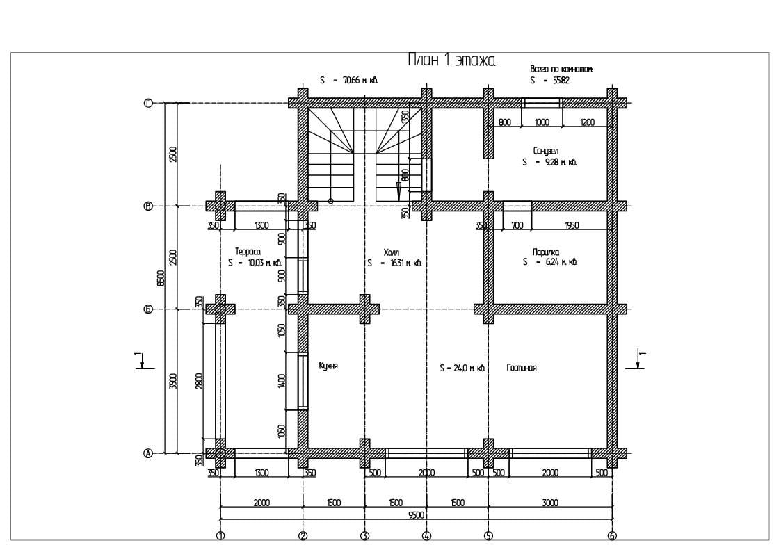
Тип строенияЖилой дом
-
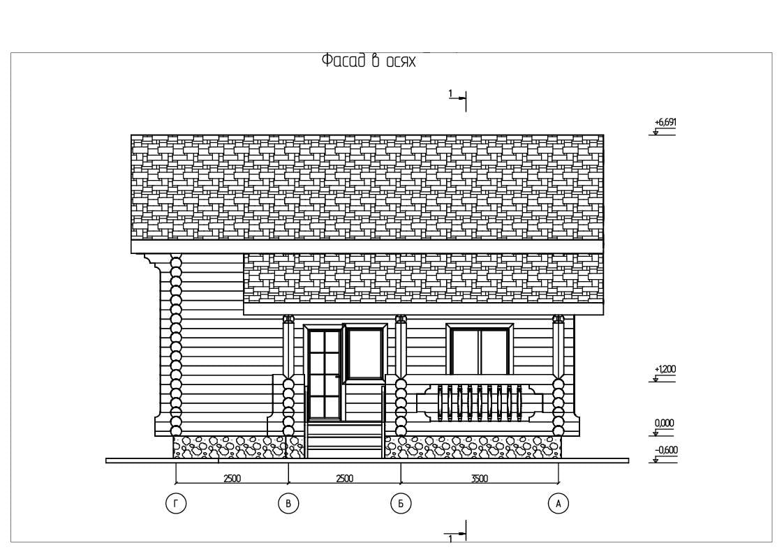
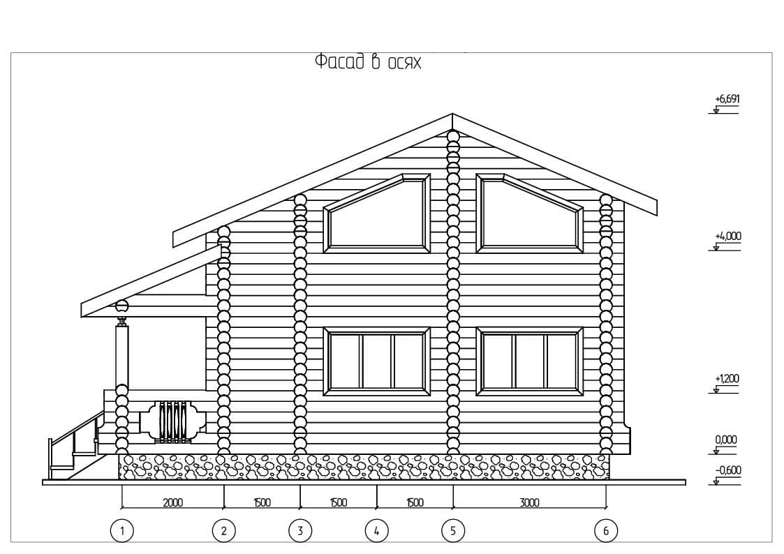
МатериалОцилиндрованное бревно
-
Тип фундаментаНа винтовых сваях
-
Площадь139
-
Этажность1
-
Габариты9.5x8.5
-
БалконНет
-
Второй светНет
-
ГаражНет
-
МансардаДа
-
Сауна/БассейнНет
-
ТеррасаНет
-
Цокольный этажНет





