Характеристики
-
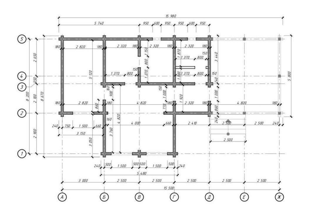
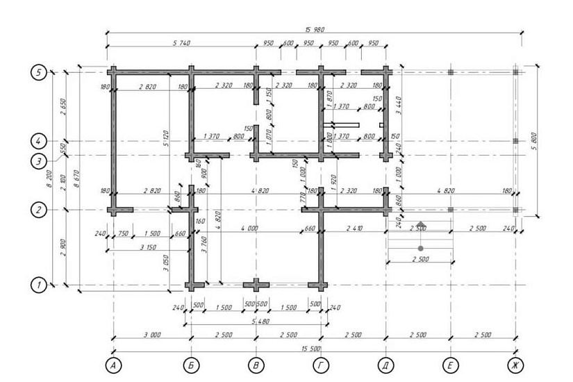
Тип строенияЖилой дом
-
МатериалПроф. брус
-
Тип фундаментаНа винтовых сваях
-
Площадь131
-
Этажность1
-
Габариты15500x8200
-
БалконНет
-
Второй светНет
-
ГаражНет
-
МансардаНет
-
Сауна/БассейнДа
-
ТеррасаДа
-
Цокольный этажНет



