Характеристики
-
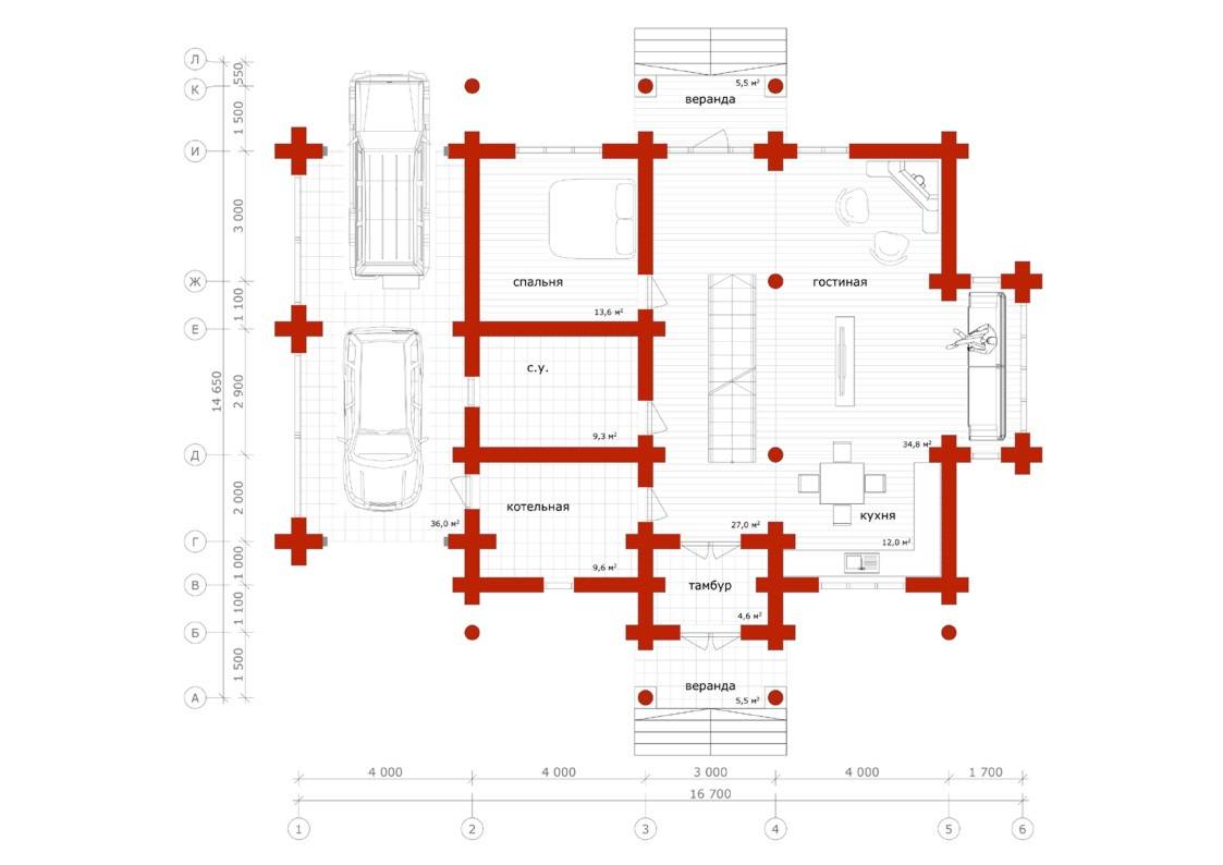
Тип строенияЖилой дом
-
МатериалБревно
-
Тип фундаментаНа винтовых сваях
-
Площадь328
-
Этажность2
-
Габариты16.7x14.65
-
БалконДа
-
Второй светНет
-
ГаражДа
-
МансардаНет
-
Сауна/БассейнНет
-
ТеррасаНет
-
Цокольный этажНет




