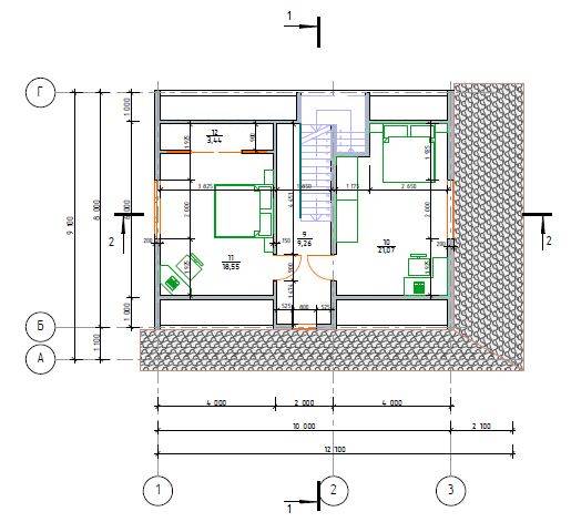
Жилой дом 9000х12000 Материал стен: Деревянный каркас. Фундамент: На винтовых сваях
Отдел продаж
Запись на геологию

Жилой дом: 200446

Бесплатно
Характеристики
  • Тип строения
    Жилой дом
  • Материал
    Деревянный каркас
  • Тип фундамента
    На винтовых сваях
  • Площадь
    148
  • Этажность
    1,5
  • Габариты
    9000х12000
  • Балкон
    Нет
  • Второй свет
    Нет
  • Гараж
    Нет
  • Мансарда
    Да
  • Сауна/Бассейн
    Нет
  • Терраса
    Да
  • Цокольный этаж
    Нет
Строительство по моему бюджету
Заявка на выезд геолога
От 12 000 рублей. В стоимость входит проведение геотехнических исследований (зондирование грунтов не менее чем в трех точках), измерение коррозионной агрессивности грунтов, а также нивелировка участка.​
ФИО / Название организации *
E-mail
Телефон *
Адрес выезда
Введите код*
Нажимая кнопку «Заказать», я подтверждаю свою дееспособность и даю согласие на обработку своих персональных данных в соответствии с условиями