Характеристики
-
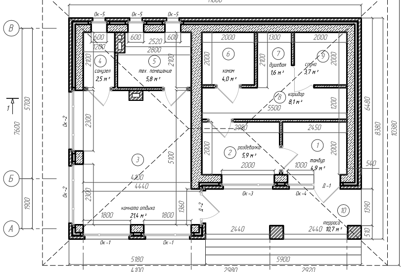
Тип строенияБаня
-
МатериалКерамзитобетон
-
Тип фундаментаНа винтовых сваях
-
Площадь68,6
-
Этажность1
-
Габариты10000х7600
-
БалконНет
-
Второй светНет
-
ГаражНет
-
МансардаНет
-
Сауна/БассейнДа
-
ТеррасаДа
-
Цокольный этажНет








