Проект предоставлен партнером:
БРУСНИКА /
sk-brusnika.ru
Характеристики
-
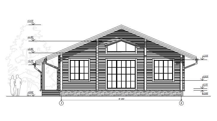
Тип строенияЖилой дом
-
МатериалБрус
-
Тип фундаментаНа винтовых сваях
-
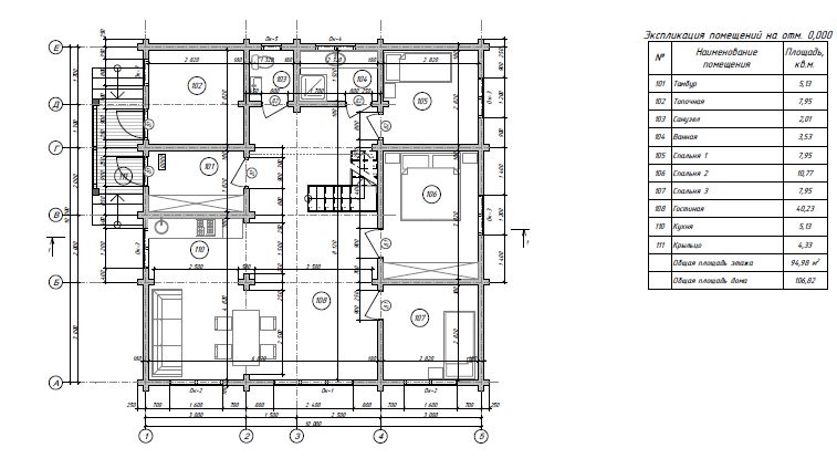
Площадь106
-
Этажность1
-
Габариты10500х10000
-
БалконНет
-
Второй светНет
-
ГаражНет
-
МансардаНет
-
Сауна/БассейнНет
-
ТеррасаНет
-
Цокольный этажНет






