Характеристики
-
Тип строенияПрочие строения
-
МатериалДеревянный каркас
-
Тип фундаментаНа винтовых сваях
-
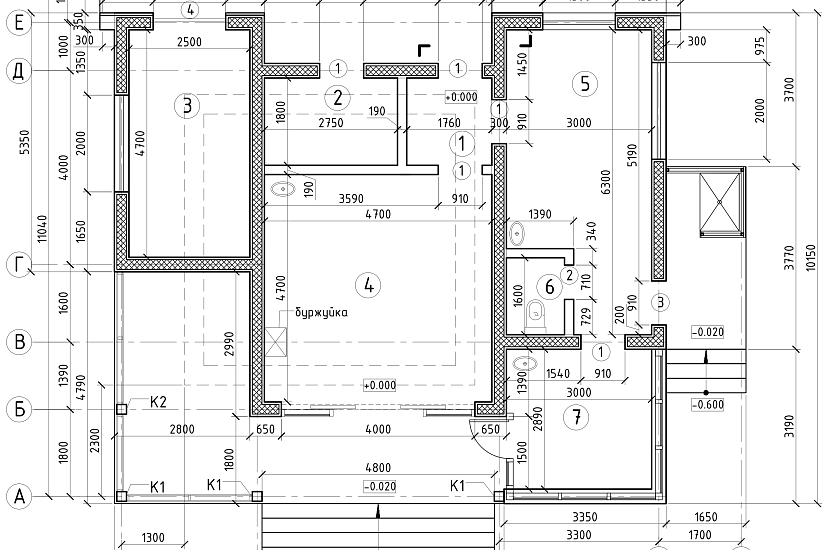
Площадь68,7
-
Этажность1
-
Габариты12800х11040
-
БалконНет
-
Второй светНет
-
ГаражНет
-
МансардаНет
-
Сауна/БассейнНет
-
ТеррасаДа
-
Цокольный этажНет















