Характеристики
-
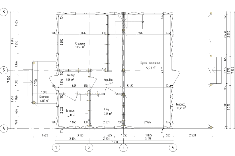
Тип строенияЖилой дом
-
МатериалSIP-панель
-
Тип фундаментаНа винтовых сваях
-
Площадь135
-
Этажность1,5
-
Габариты11428х7500
-
БалконНет
-
Второй светНет
-
ГаражНет
-
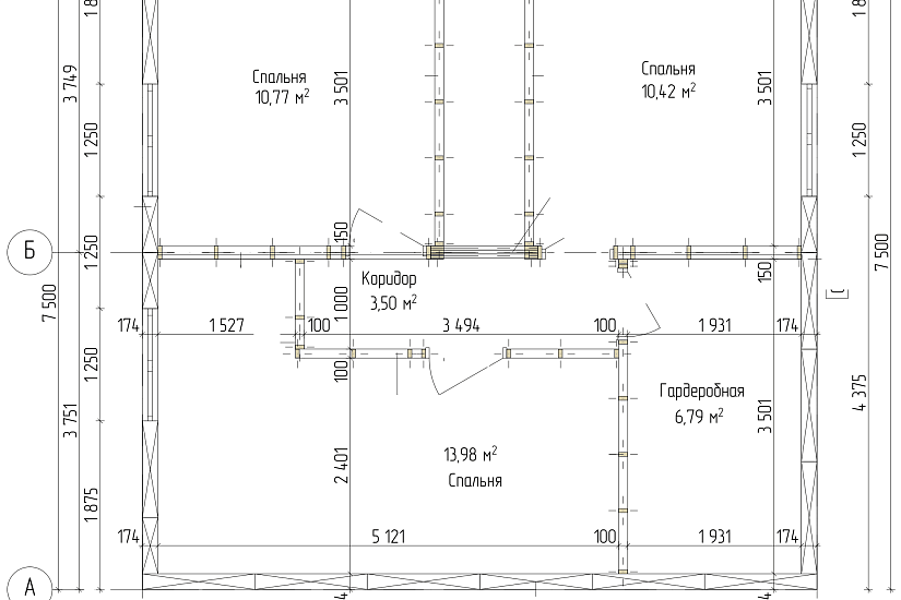
МансардаДа
-
Сауна/БассейнНет
-
ТеррасаДа
-
Цокольный этажНет







