Проект предоставлен партнером:
/
arplans.ru/
Характеристики
-
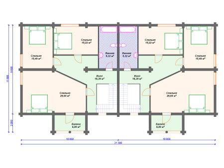
Тип строенияЖилой дом
-
МатериалБревно
-
Тип фундаментаНа винтовых сваях
-
Площадь387.04
-
Этажность1.5
-
Габариты11800x21300
-
БалконДа
-
Второй светНет
-
ГаражНет
-
МансардаДа
-
Сауна/БассейнНет
-
ТеррасаНет
-
Цокольный этажНет


