Проект предоставлен партнером:
/
arplans.ru/
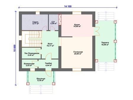
Характеристики
-
Тип строенияЖилой дом
-
МатериалГазосиликат
-
Тип фундаментаНа винтовых сваях
-
Площадь178,67
-
Этажность1,5
-
Габариты14100х10600
-
БалконНет
-
Второй светНет
-
ГаражНет
-
МансардаДа
-
Сауна/БассейнДа
-
ТеррасаДа
-
Цокольный этажНет





