Проект предоставлен партнером:
/
uralekodom.ru
Характеристики
-
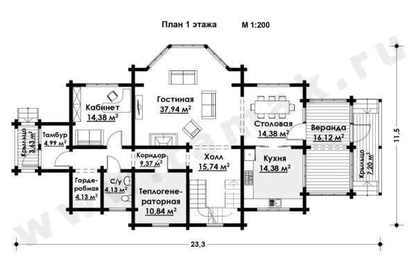
Тип строенияЖилой дом
-
МатериалКлееный брус
-
Тип фундаментаНа винтовых сваях
-
Площадь303
-
Этажность2
-
Габариты18000х12000
-
БалконДа
-
Второй светНет
-
ГаражНет
-
МансардаНет
-
Сауна/БассейнНет
-
ТеррасаНет
-
Цокольный этажНет


